

- Prix
- 433 000 €
Maison neuve • Auray
- Nom et prix
- Terrain à bâtir () • 433 000 €
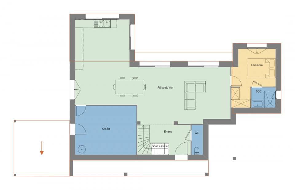
Auray : maison F5 (140 m²) en vente EMPLACEMENT PRIVILÉGI- MAISON 5 PIÈCES NEUVE En vente : localisée à 12 km de l'océan Atlantique et à quelques kilomètres de Lorient, Maisons de l'Avenir Lorient vous présente cette maison de 5 pièces de 140 m² et de 272 m² de terrain bénéficiant d'un emplacement d'exception dans Auray (56400). Cette maison possède 2 niveaux. Elle propose quatre chambres, une cuisine et deux salles de bains. La maison est neuve. La maison se situe dans un secteur convoité. Plusieurs établissements scolaires (maternelle, élémentaire, primaire et lycée) sont implantés à moins de 10 minutes à pied, tout comme une crèche. Niveau transports, on trouve les gares Auray, Sainte-Anne et Belz-Ploemel à moins de 10 minutes en voiture. La nationale N165 est accessible à 2 km. Il y a une bibliothèque, un tennis, des commerces, des boulangeries, deux supermarchés, trois poissonneries et un bureau de poste à proximité du bien. Enfin, le marché Rue et place a lieu chaque lundi matin. Elle est proposée à l'achat pour 433 000 €. Contactez Anne-Sophie LAPART (tél : 02-97-21-63-96) pour plus de renseignements sur la maison ou sur les modalités de vente. Maisons de l'Avenir Lorient vous accompagne dans tous vos projets immobiliers et à toutes les étapes de votre projet.





