

- Prix
- 328 000 €
Maison neuve • Pont-Aven
- Nom et prix
- Terrain à bâtir Pont-Aven (29930) • 328 000 €
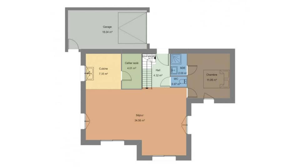
VENTE d'une maison T4 (89 m²) à Pont-Aven IDÉALEMENT SITUÉE - MAISON 4 PIÈCES NEUVE En vente : localisée sur le littoral atlantique et à 28 km de Quimper, idéalement située dans Pont-Aven (29930), nous vous proposons cette maison de 4 pièces de 89 m². C'est une maison de 2 niveaux. Son intérieur inclut trois chambres, une cuisine et deux salles de bains. La maison est neuve. Le terrain de la propriété est de 480 m². Cette maison est située dans un secteur convoité. On y trouve quatre établissements scolaires. Niveau transports, on trouve la gare Bannalec à moins de 10 minutes en voiture. Il y a un accès à la nationale N165 à 3 km. Il y a une bibliothèque et une boulangerie à proximité du bien. Elle est à vendre pour la somme de 328 000 €. N'hésitez pas à prendre contact avec Christophe COLLOCH (02-97-21-63-96) pour toute information sur la propriété et sur les démarches à suivre. Maisons de l'Avenir Lorient vous accompagne à toutes les étapes de l'achat et dans tous vos projets immobiliers.





