

- Prix
- 298 400 €
Maison neuve • Cléguer
- Nom et prix
- Terrain à bâtir () • 298 400 €
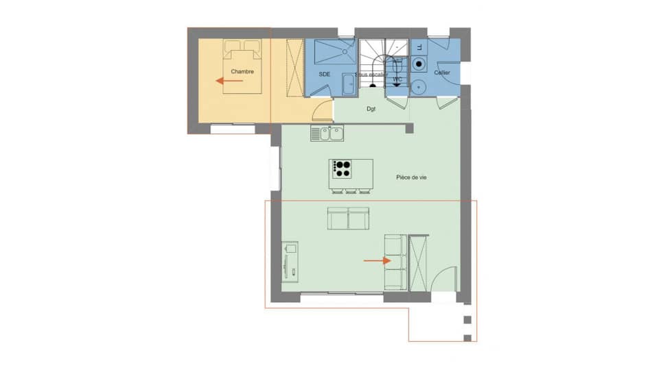
Maison T5 (102 m²) en vente à Cléguer EMPLACEMENT PRIVILÉGI- MAISON 5 PIÈCES NEUVE À vendre : localisée à 18 km de la côte atlantique et à quelques kilomètres de Lorient, découvrez, bénéficiant d'un emplacement privilégié dans Cléguer (56620), cette maison de 5 pièces de 102 m² et de 385 m² de terrain. Elle comporte quatre chambres, une cuisine et deux salles de bains. C'est une maison de 2 niveaux. Elle est neuve. Cette maison se trouve dans un quartier prisé. Il y a l'École Primaire Privée Saint Gérand et l'École Primaire Publique Georges Brassens à moins de 10 minutes à pied. Côté transports, on trouve les gares Gestel et Hennebont à moins de 10 minutes en voiture. La nationale N165 est accessible à 8 km. Il y a deux commerces, une boulangerie et une épicerie à quelques minutes du logement. Elle est proposée à l'achat pour 298 400 €. Contactez Kevin SIMON (02-97-21-63-96) pour toute information sur la maison ou sur les modalités de vente. Maisons de l'Avenir Lorient est là pour vous accompagner dans tous vos projets immobiliers.





