

- Prix
- 555 000 €
Maison neuve • Le Plessis-Belleville
- Nom et prix
- Terrain à bâtir () • 555 000 €
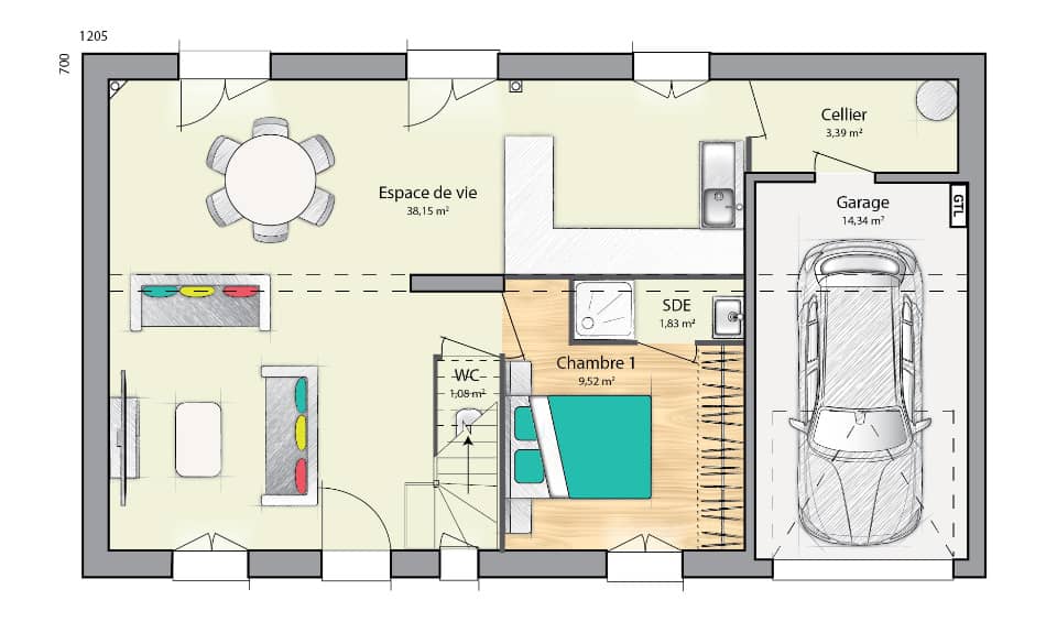
Maison d'architecte , 120m² , dans le coeur du Plessis Belleville , sur un terrain de 956m² . Rare dans cette commune , environnement paisible et verdoyant , à deux pas des écoles , commodités et grandes surfaces . Cette maison dispose de 4 chambres avec rangements intégrés , séjour carrelé ,2 salles d'eau équipées ,cellier et garage , packs alarme et domotique , baie aluminium , volets roulants centralisés et intégrés à la maçonnerie ... Plans 100% personnalisables et modifiables . Accompagnement intégral : Financement , étude technique du terrain , gestion administrative . Frais annexes ( raccordements , viabilisation , puisards, enlèvements des terres excédentaires , chemin d'accès )inclus dans le prix de cette annonce . Contactez moi pour une étude gratuite . Rendez vous en agence ou à votre domicile . VERON ANTHONY /07/77/85/58/88/





