

- Prix
- 193 220 €
Maison neuve • Ribécourt-Dreslincourt
- Nom et prix
- Terrain à bâtir () • 193 220 €
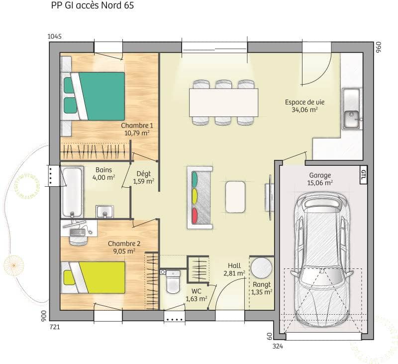
Maison de plain pied , située à Ribécourt Dreslincourt , sur un terrain de 598m² . Vue dégagée , environnement paisible et verdoyant , à deux pas des écoles , et commerces (boulangerie , boucherie ..). Cette maison dispose de 2 chambres avec rangements intégrés , séjour carrelé ,1 salle d'eau équipée ,cellier , garage , packs alarme et domotique , baie aluminium , volets roulants centralisés et intégrés à la maçonnerie ... Plans 100% personnalisables et modifiables . Accompagnement intégral : Financement , étude technique du terrain , gestion administrative . Frais annexes ( raccordements , viabilisation , puisards, enlèvements des terres excédentaires , chemin d'accès )inclus dans le prix de cette annonce . Contactez moi pour une étude gratuite . Rendez vous en agence ou à votre domicile . VERON ANTHONY /07/77/85/58/88/





