

- Prix
- 258 000 €
Maison neuve • Saint-Saturnin
- Nom et prix
- Terrain à bâtir Saint-Saturnin (72650) • 258 000 €
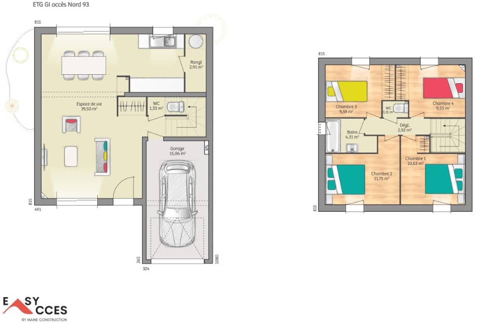
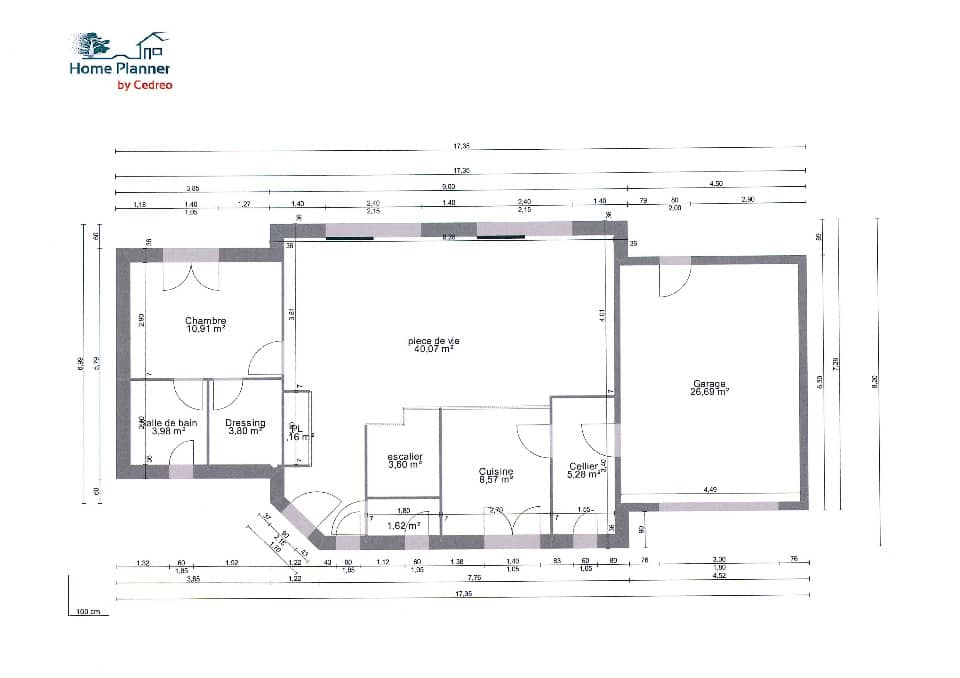
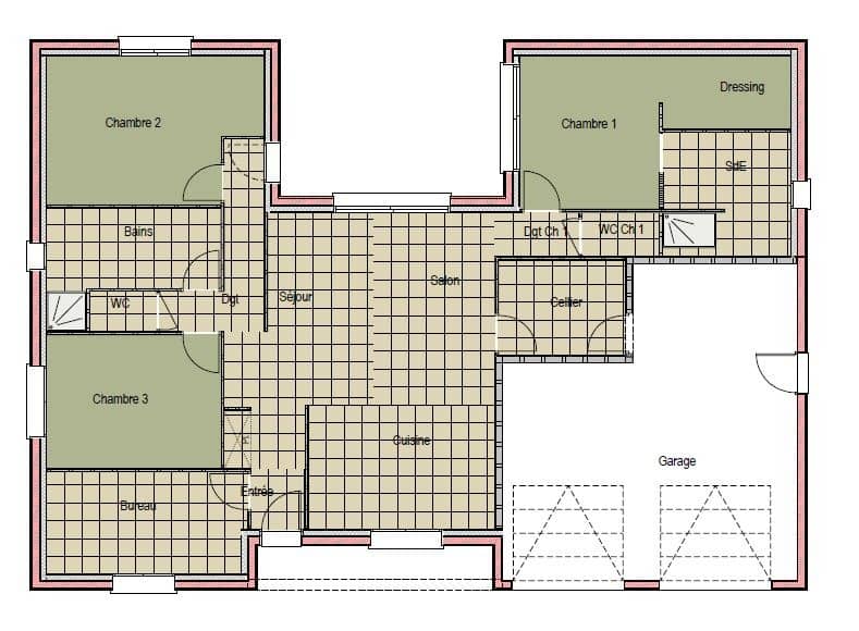
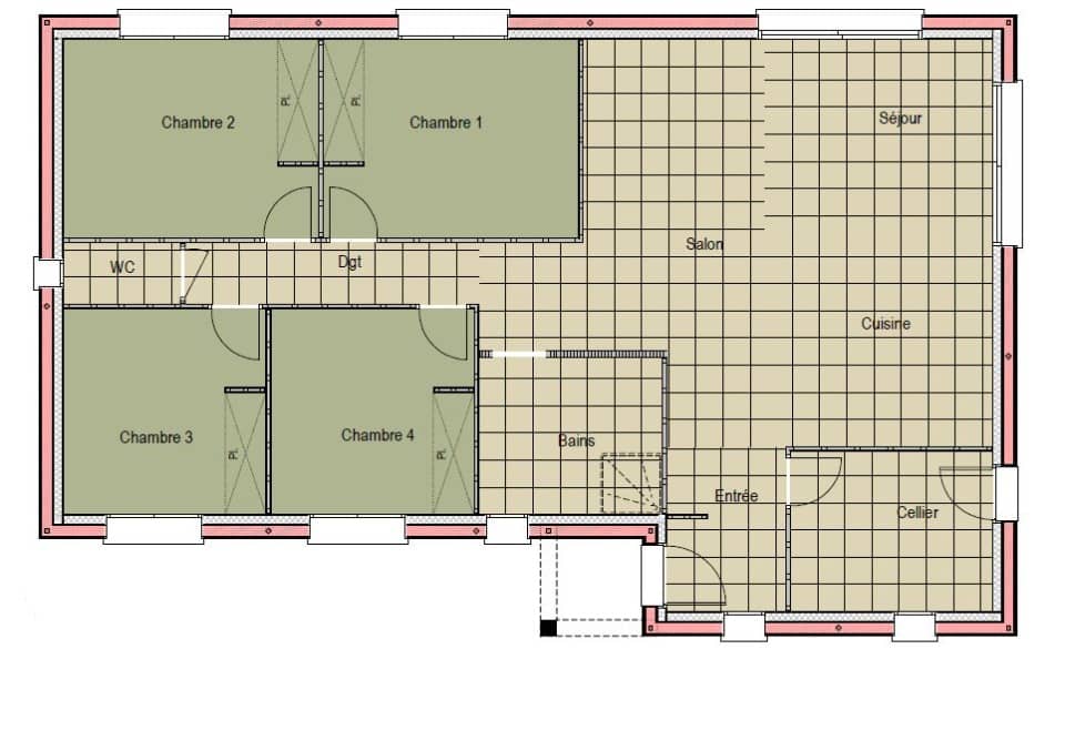
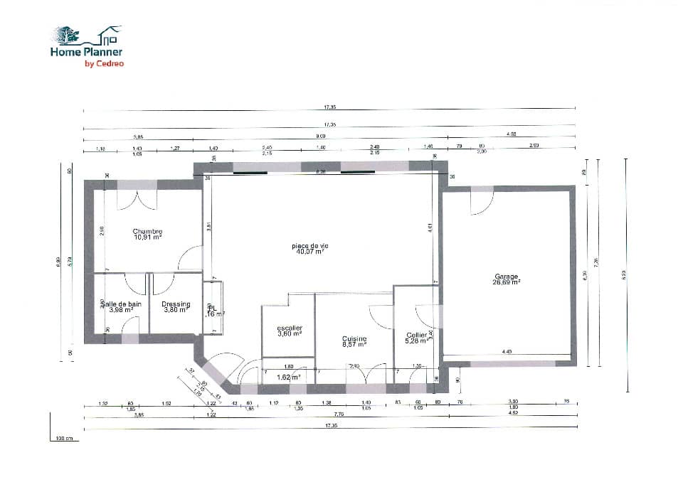
Saint-Saturnin : maison de 5 pièces (93 m²) en vente EMPLACEMENT PRIVILÉGI- MAISON 5 PIÈCES NEUVE À deux pas du Mans, nous vous proposons à vendre, bénéficiant d'un emplacement privilégié dans Saint-Saturnin (72650), cette maison de 5 pièces de 93 m² et de 398 m² de terrain. Son intérieur inclut quatre chambres, une cuisine et une salle de bains. Cette maison possède 2 niveaux. Elle est neuve. Cette maison est située dans un quartier recherché. L'École Élémentaire Publique les 7 Plûmes, l'École Maternelle Publique le Petit Monde et le Lycée Agricole Privé les Horizons-Site de Saint Saturnin sont implantés à moins de 10 minutes à pied, tout comme une crèche. Niveau transports, il y a trois gares (Neuville-sur-Sarthe, La Guierche et Le Mans) à moins de 10 minutes en voiture. L'autoroute A11 est accessible à 1 km. On trouve un bassin de natation, un tennis, une boulangerie, un commerce et une épicerie à proximité de la maison. Elle est à vendre pour la somme de 258 000 €. Contactez Luc LIVET (07-77-76-37-30) Maine Construction Saint-Saturnin pour obtenir de plus amples informations sur la maison, sur les modalités de vente ou sur les démarches à suivre.





