

- Prix
- 311 000 €
Maison neuve • Saint-Pathus
- Nom et prix
- Terrain à bâtir Saint-Pathus (77178) • 311 000 €
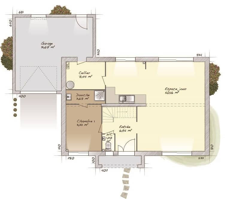
Jusqu'à 30% DE VOTRE EMPRUNT À UN TAUX DE 0% D'INTÉRÊT ! Réalisez votre projet de construction à seulement 3 minutes des ecoles avec Yoan, expert des Maisons Balency, membre du groupe HEXAOM, leader national de la maison individuelle ! 📍 Superbe terrain de 300 m², sans vis-à-vis 🌿 Un cadre calme et verdoyant, proche de toutes commodités Vous souhaitez simplement vous renseigner ou explorer vos possibilités ? Nos maisons sont entièrement personnalisables, avec plus de 100 modèles disponibles ! 📞 Contactez Yoan dès maintenant au O6 58 o9 8O 47 pour obtenir toutes les informations dont vous avez besoin. 🏡 Maison moderne et lumineuse, conçue pour allier confort et fonctionnalité.





