

- Prix
- 354 822 €
Maison neuve • Émalleville
- Nom et prix
- Terrain à bâtir () • 354 822 €
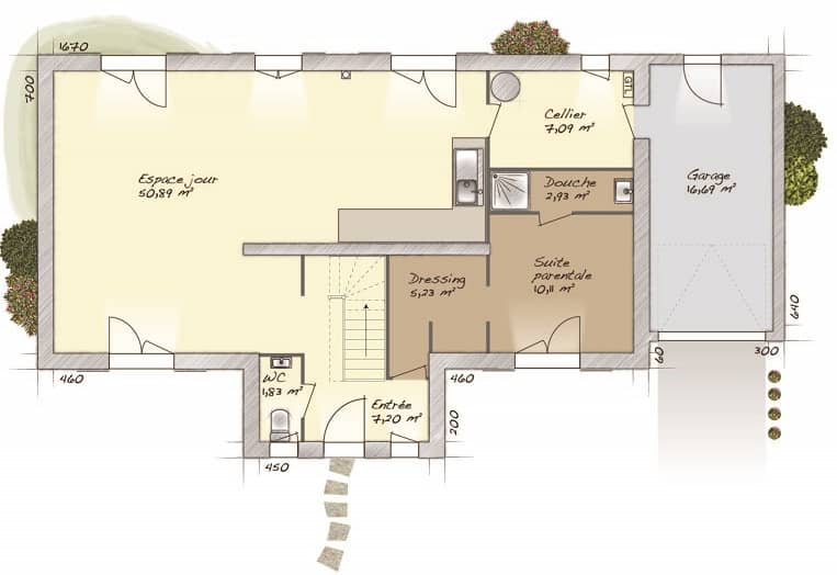
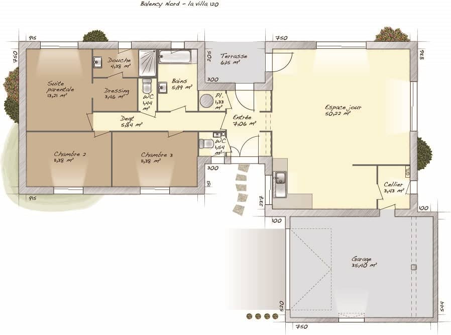
VENTE : maison T8 (145 m²) à Émalleville PROCHE D'ÉVREUX - MAISON 8 PIÈCES NEUVE En vente à quelques kilomètres d'Évreux, notre agence Maisons Balency Gravigny est heureuse de vous présenter cette maison de 8 pièces de 145 m² à Émalleville (27930). Cette maison compte 2 niveaux. Son intérieur offre cinq chambres, une cuisine et trois salles de bains. La maison est neuve. Le terrain du bien est de 987 m². Une école maternelle est implantée dans le quartier. Côté transports en commun, il y a la gare Évreux Normandie à moins de 10 minutes en voiture. L'autoroute A154 et les nationales N154 et N13 sont accessibles à moins de 10 km. Elle est proposée à l'achat pour 354 822 €. Prenez contact avec notre constructeur (DELELIS Karen : 06-26-38-49-42) pour toute question sur cette maison. Maisons Balency Gravigny est là pour vous accompagner dans tous vos projets immobiliers.





