

- Prix
- 360 000 €
Maison neuve • Pézenas
- Nom et prix
- Terrain à bâtir Pézenas (34120) • 360 000 €
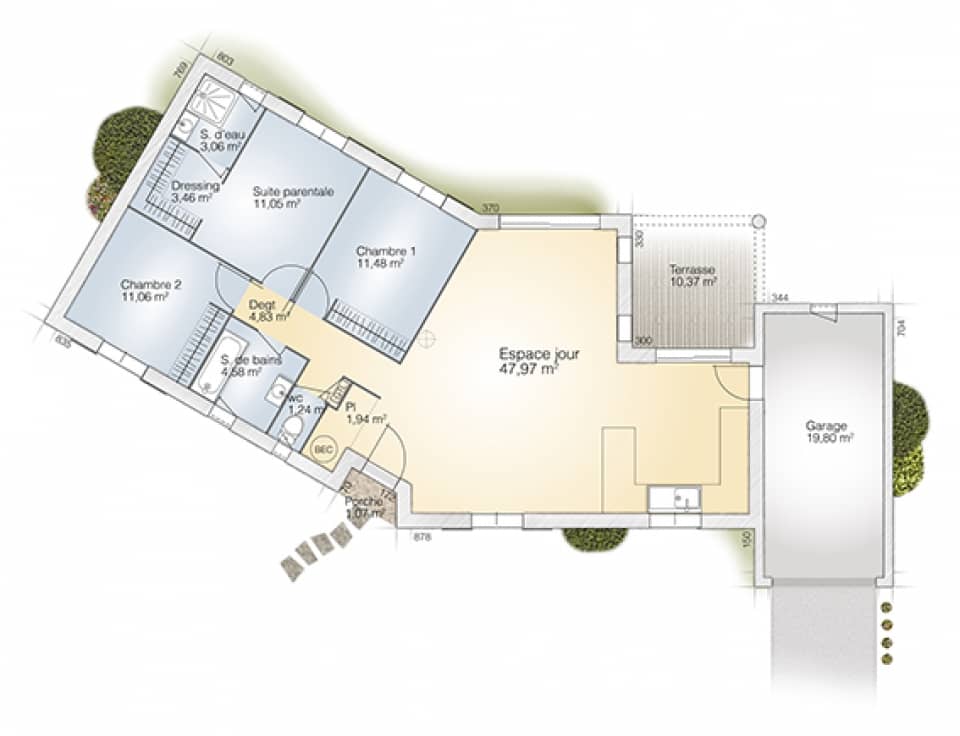
VENTE : maison T5 (100 m²) à Péret IDÉALEMENT SITUÉE - MAISON 5 PIÈCES NEUVE En vente : à 32 km de la mer Méditerranée et à quelques kilomètres de Béziers, idéalement située dans Péret (34800), Maisons Balency Pézenas vous propose cette maison de 5 pièces de plain-pied de 100 m². Conçue de plain-pied, elle propose trois chambres, une cuisine et deux salles de bains. Le terrain de la maison est de 798 m². Cette maison est neuve. La maison se trouve dans un secteur recherché. Il y a l'École Primaire Jacques Montagne à moins de 10 minutes à pied. Il y a un accès à l'autoroute A75 à 7 km. On trouve une bibliothèque, un tennis, une boulangerie et une épicerie à proximité. Son prix de vente est de 360 000 €. Prenez contact avec Léo RENARD (tél : 06-13-67-09-81) pour obtenir de plus amples renseignements sur la maison.





