

- Prix
- 243 000 €
Maison neuve • Bazancourt (51)
- Nom et prix
- Terrain à bâtir () • 243 000 €
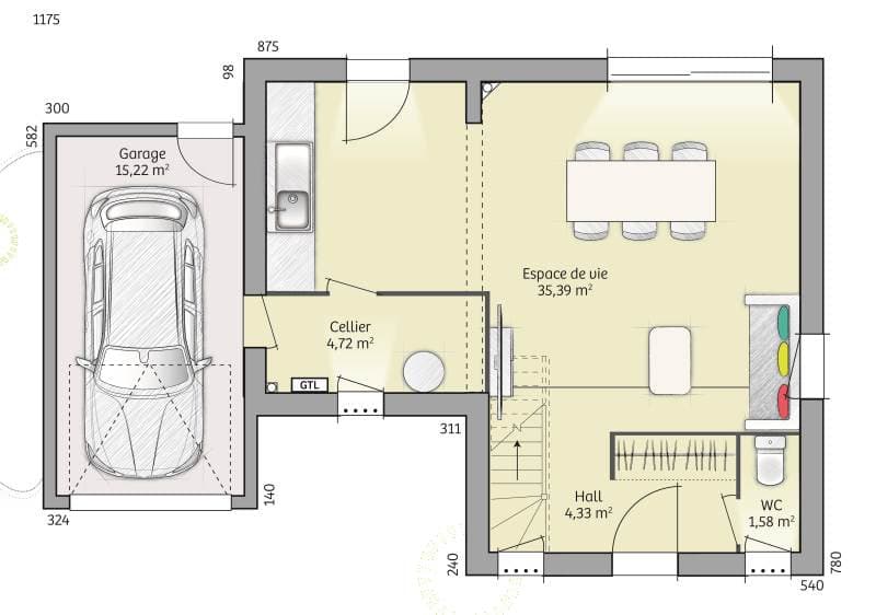
À Bazancourt, maison neuve (normes RE 2020) de 90m2 avec patio. Maison de construction traditionnelle (matériaux de qualité, ossature en brique) de 3 chambres (possibilité d'une quatrième). Le modèle présenté est le modèle Open Nord ETG L GA accès Sud 90 so chic d'une surface habitable de 90m2 et compte une pièce de vie ouverte sur la cuisine, une salle de bain, 3 chambres, avec espace pour les placards, deux wc, un cellier et un garage. Il est possible de personnaliser ces plans afin qu'ils répondent parfaitement à vos attentes. Terrain constructible en totale exclusivité de 790m² à Bazancourt. Environnement magnifique très qualitatif et très rare. Bazancourt est une commune très recherchée pour son axe direct et sa proximité avec Reims, Witry Lès Reims, Lavannes, Berru, Pomacle, Bourgogne, Cernay, Fresnes Lès Reims, Nogent l'Abbesse, Warmeriville, Isles sur Suippe, Boult sur Suippe et Bétheny. Cette commune dispose de toutes les commodités sur place, école, collège, gare commerces etc... Deux autres terrains de 750m² et de 1600m² sont également disponibles. Pour plus de renseignements vous pouvez me contacter , Nicolas GUILLAUME de l'agence Maisons France Confort de Cormontreuil au 07.77.79.23.59