

- Prix
- 885 000 €
Maison neuve • Chennevières-sur-Marne (94)
- Nom et prix
- Terrain à bâtir Chennevières-sur-Marne (94430) • 885 000 €
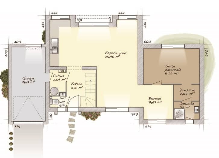
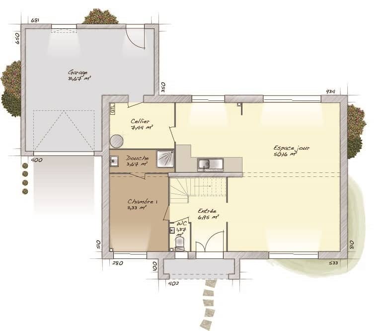
VENTE d'une maison de 6 pièces (130 m²) à Chennevières-sur-Marne PROCHE DE PARIS - MAISON 6 PIÈCES NEUVE À côté du RER A (station La Varenne-Chennevières, 15 min de Paris), à vendre à Chennevières-sur-Marne (94430), Maisons Berval Le Perreux-sur-Marne vous propose cette maison de 6 pièces de 130 m². Son intérieur compte trois chambres, une cuisine et deux salles de bains. Le terrain de cette maison s'étend sur 570 m². Il s'agit d'une maison de 2 niveaux. Elle est neuve. Il y a des établissements scolaires de tous types à moins de 10 minutes à pied, tout comme trois crèches. Niveau transports, on trouve les lignes A, E, D et C du RER ainsi que 16 gares à moins de 10 minutes en voiture. Il y a une bibliothèque, un tennis, un bassin de natation, trois supermarchés, des commerces, des boulangeries, une boucherie-charcuterie et une supérette à quelques minutes. Son prix de vente est de 885 000 €. Prenez contact avec Franck THAREAU (tél : 01-48-81-08-79) pour plus d'informations sur le bien ou sur les démarches à suivre. Maisons Berval Le Perreux-sur-Marne vous accompagne à toutes les étapes de votre projet et dans tous vos projets immobiliers.













