

- Prix
- 170 800 €
Maison neuve • Saint-Yrieix-sur-Charente (16)
- Nom et prix
- Terrain à bâtir Saint-Yrieix-sur-Charente (16710) • 170 800 €
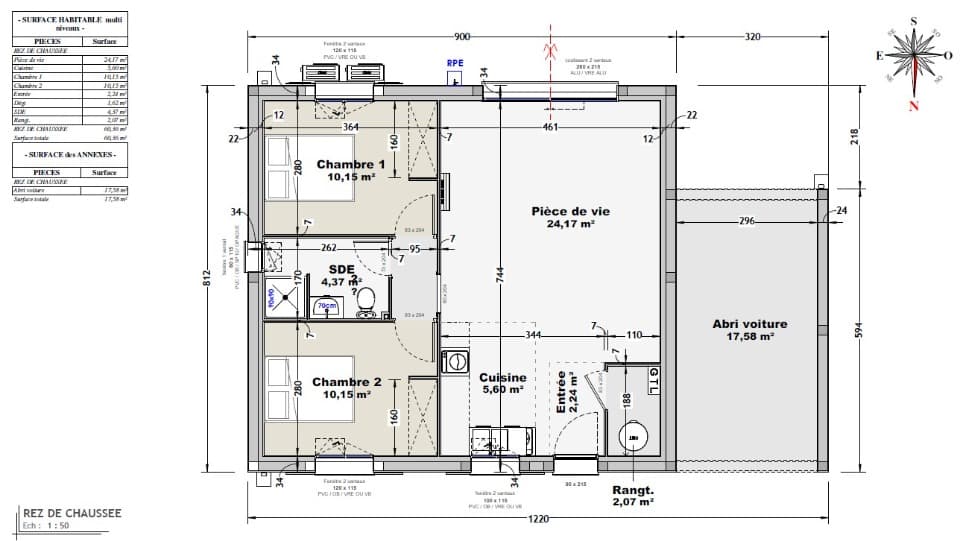
Maison T2 (60 m²) à Saint-Yrieix-sur-Charente IDÉALEMENT SITUÉE À vendre à 4 km d'Angoulême, idéalement située dans Saint-Yrieix-sur-Charente, votre agence Bermax Construction Saint-Yrieix-sur-Charente est heureuse de vous présenter cette maison de 2 pièces de plain-pied de 60 m² et de 324 m² de terrain. Elle offre deux chambres, une cuisine et une salle de bains. Le bien est situé dans un secteur attractif. On trouve l'École Élémentaire Claude Roy et l'École Maternelle la Marelle à moins de 10 minutes à pied. Niveau transports, il y a deux gares (Angoulême et Ruelle-sur-Touvre) à moins de 10 minutes en voiture. On trouve un supermarché, quatre commerces, deux boulangeries, un bureau de poste et une boucherie-charcuterie à quelques minutes à peine. Il est à vendre pour la somme de 158 500 €. Contactez Pauline (tél : 06-80-96-56-78) pour obtenir de plus amples renseignements sur la maison, sur les démarches à suivre ou sur les modalités de vente. Bermax Construction Saint-Yrieix-sur-Charente est là pour vous accompagner dans tous vos projets immobiliers.