

- Prix
- 418 000 €
Maison neuve • Mériel (95)
- Nom et prix
- Terrain à bâtir Mériel (95630) • 418 000 €
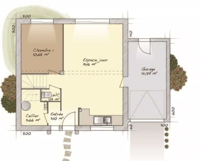
VENTE : maison de 6 pièces (98 m²) à Mériel PROCHE DE PARIS - MAISON 6 PIÈCES NEUVE En vente : proche du Transilien H (40 min de Paris), Maisons Balency Saint-Maur-des-Fossés vous présente cette maison de 6 pièces de 98 m² et de 280 m² de terrain à Mériel (95630). C'est une maison de 2 niveaux. Son intérieur dispose de quatre chambres, d'une cuisine et d'une salle de bains. La maison est neuve. Quatre établissements scolaires sont implantés à moins de 10 minutes à pied. Côté transports, il y a la gare Mériel juste à côté. On trouve une bibliothèque, un tennis, deux commerces, une boulangerie, une épicerie, un bureau de poste et une boucherie-charcuterie dans les environs. Elle est proposée à l'achat pour 418 000 €. Contactez Aurelien MONTANIER (tél : 06-24-66-88-34) pour toute information sur le bien, sur les démarches à suivre ou sur les modalités de vente. Maisons Balency Saint-Maur-des-Fossés est là pour vous accompagner dans tous vos projets immobiliers.