

- Prix
- 380 000 €
Maison neuve • Groslay (95)
- Nom et prix
- Terrain à bâtir Groslay (95410) • 380 000 €
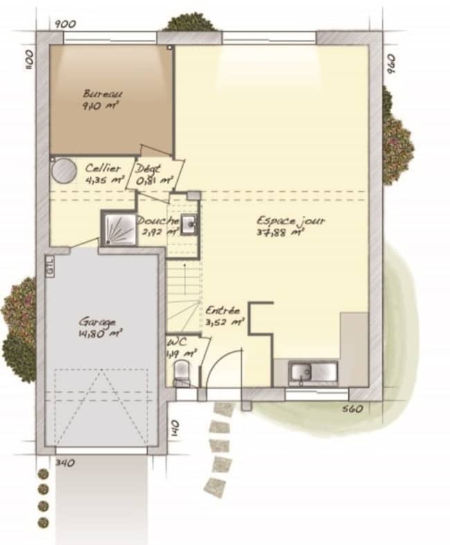
Maison de 5 pièces (98 m²) en vente à Groslay MAISON 5 PIÈCES NEUVE - PROCHE DE PARIS À vendre : proche de la gare, laissez vous charmer par cette maison de 5 pièces de 98 m² et de 238 m² de terrain à Groslay (95410). Elle compte quatre chambres, une cuisine et une salle de bains. Cette maison possède 2 niveaux. Elle est neuve. L'École Primaire les Glaisières, l'École Maternelle Marie Laurencin et l'École Élémentaire Alphonse Daudet sont implantées à moins de 10 minutes à pied. Niveau transports, il y a la gare Groslay à quelques pas du bien, plaçant Paris à 15 min de la maison en transilien. On trouve une bibliothèque, un tennis, des commerces, quatre boulangeries, un supermarché, une boucherie-charcuterie et des épiceries à proximité du logement. Son prix de vente est de 380 000 €. Prenez contact avec Aurelien MONTANIER (06-24-66-88-34) pour plus de renseignements sur la maison.











