

- Prix
- 789 800 €
Maison neuve • Verrières-le-Buisson (91)
- Nom et prix
- Terrain à bâtir Verrières-le-Buisson (91370) • 789 800 €
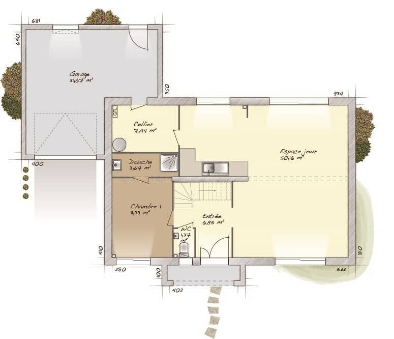
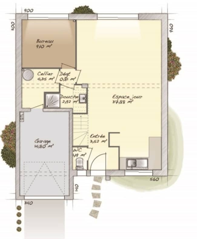
VENTE : maison F6 (135 m²) à Verrières-le-Buisson MAISON 6 PIÈCES NEUVE - PROCHE DE PARIS A 15 minutes du RER B qui relie Paris en 1/4 d'heure, Maisons Berval vous propose de réaliser ce projet de construction d'une maison neuve à faible consommation énergétique. Elle est composée de quatre chambres, d'une cuisine et de deux salles de bains. Le terrain est de 375 m². Cette maison possède 2 niveaux. Elle est neuve. Des établissements scolaires de tous niveaux et des commerces sont implantés dans la commune. Son prix de vente est de 789 800 €. N'hésitez pas à prendre contact avec Cyril BAGUET (tél : 06-14-79-66-46) pour toute information sur cette maison.











