

- Prix
- 489 000 €
Maison neuve • Massy (91)
- Nom et prix
- Terrain à bâtir () • 489 000 €
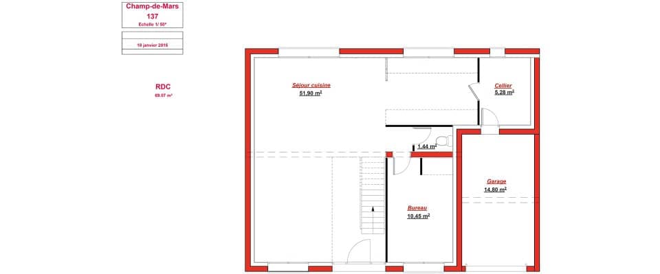
Tessie de Maisons Evolution vous propose avec son partenaire foncier cette jolie maison contemporaine de 120m² avec garage intégré le tout sur un terrain de 305 m² en lot avant. Situé au centre-ville de Massy vous retrouverez toutes les commodités (écoles, commerces, transports en commun) à quelques minutes à pied. Cette maison vous offre une belle pièce de vie de plus de 40 m² avec un cellier attenant au garage, un wc, a l'étage 4 chambres dont une suite parentale et une salle de bain. Les plans sont entièrement modifiables et possibilité de faire du sur mesure donc ne tardez pas et contactez Tessie FLEUREAU 07/62/06/10/64 pour plus de renseignement. Terrain proposé par un partenaire foncier selon disponibilités et autorisation de publicité au prix de 239 000 euros. Hors droit d'enregistrement, frais de notaire, et frais annexes. Maison avec garage accolé proposée au prix de 250 000 euros (Hors branchements et raccordements, viabilisation du terrain, papiers peints, peintures, revêtement de sol. Tarif modifiable sans préavis). Etiquette énergie : A. Différents modèles disponibles pour ce terrain. Assurances et garanties du constructeur (RC professionnelle, décennale, dommage ouvrage, garantie de remboursement de l'acompte, livraison à prix et délai convenu)













