

- Prix
- 601 000 €
Maison neuve • Sartrouville (78)
- Nom et prix
- Terrain à bâtir Sartrouville (78500) • 601 000 €
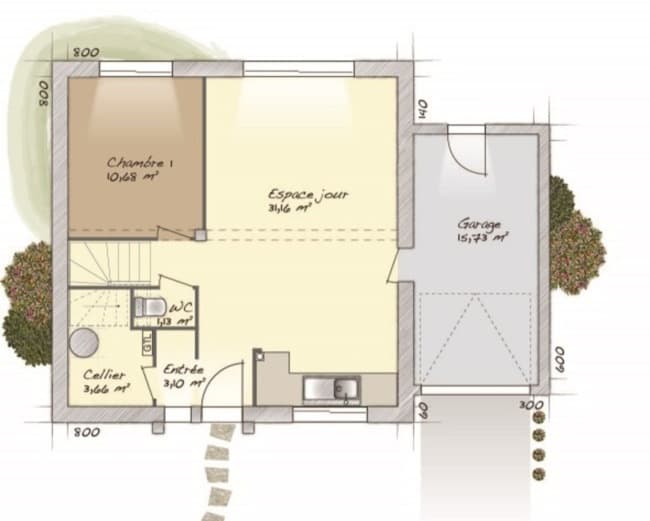
Sartrouville : maison F6 (98 m²) en vente MAISON 6 PIÈCES NEUVE En vente : au pied de la gare (Paris à 15 min par le Transilien J), nous sommes heureux de vous présenter cette maison de 6 pièces de 98 m² et de 455 m² de terrain à Sartrouville (78500). Son intérieur dispose de quatre chambres, d'une cuisine et d'une salle de bains. Cette maison possède 2 niveaux. Elle est neuve. Il y a des établissements scolaires du primaire et du secondaire à moins de 10 minutes à pied. Niveau transports en commun, on trouve le RER A et C ainsi que 45 gares à moins de 10 minutes en voiture. Il y a un tennis, des commerces, des boulangeries, deux supermarchés, des épiceries et un bureau de poste à proximité. Son prix de vente est de 601 000 €. N'hésitez pas à prendre contact avec notre agence (Aurelien MONTANIER : 06-24-66-88-34) pour plus de renseignements sur cette maison ou sur les démarches à suivre. Maisons Balency Saint-Maur-des-Fossés vous accompagne à toutes les étapes de l'achat et dans tous vos projets immobiliers.