

- Prix
- 279 000 €
Maison neuve • Le Mans (72)
- Nom et prix
- Terrain à bâtir Le Mans (72000) • 279 000 €
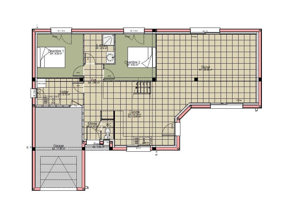
Le Mans : maison de 4 pièces (85 m²) en vente PROCHE CENTRE-VILLE - MAISON 4 PIÈCES NEUVE Nous vous proposons cette maison de 4 pièces de 85 m² en vente proche du centre-ville du Mans (72000). Cette maison comporte 2 niveaux. Elle offre deux chambres, une cuisine et une salle de bains. La maison est neuve. Le terrain de la propriété est de 305 m². Il y a le lycée Institut Technologique Européen des Métiers de la Musique à moins de 10 minutes à pied, deux crèches et l'Université du Mans et l'Institut supérieur des matériaux du Mans pour le supérieur. Côté transports, on trouve trois gares (Le Mans, Neuville-sur-Sarthe et Arnage) à moins de 10 minutes en voiture. Il y a un accès à l'autoroute A11 à 3 km. Il y a deux tennis, trois boulangeries, des commerces, un supermarché et un bureau de poste à proximité. Elle est proposée à l'achat pour 279 000 €. Prenez contact avec notre agence (François HOUDAYER : 06-23-38-26-90) pour toute question sur le bien, sur les démarches à suivre ou sur les modalités de vente. Maine Construction Saint-Saturnin vous accompagne à toutes les étapes de l'achat et dans tous vos projets immobiliers.