

- Prix
- 198 938 €
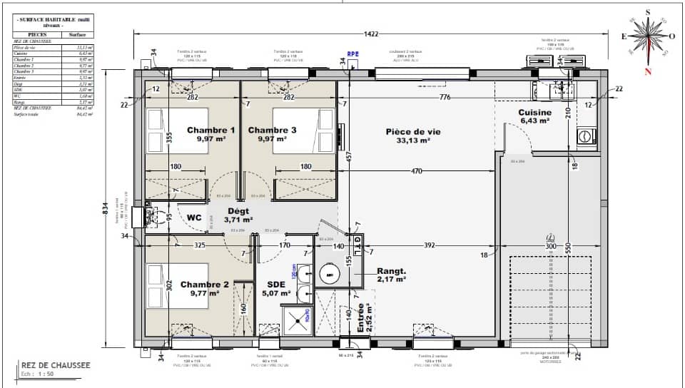
Maison neuve • Saintes (17)
- Nom et prix
- Terrain à bâtir Saintes (17100) • 198 938 €
Terrain de 495 m², situé dans un secteur calme et proche de toutes commodités. Cette maison idéale pour une famille offre 3 chambres spacieuses, un garage et un agréable jardin. À quelques minutes des écoles, commerces et transports, elle combine confort et praticité. Le terrain est bien orienté et bénéficie d''une belle exposition. Malgré sa proximité avec une route passante, l''emplacement reste très fonctionnel et agréable grâce à son accès rapide aux principales infrastructures. Il est possible de prévoir un aménagement paysager afin d''atténuer le bruit de la circulation. Ne manquez pas cette opportunité de vivre dans un cadre pratique et dynamique ! Le prix comprend le terrain, les frais de notaire, et la construction. Hors branchements et raccordements. Contact et renseignements: Cédric RÊTEUX O7 67 07 20 68











