

- Prix
- 235 000 €
Maison neuve • Montagnac (34)
- Nom et prix
- Terrain à bâtir () • 235 000 €
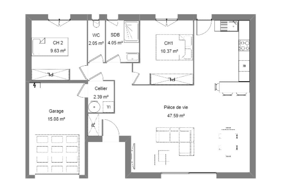
Projet de construction - Maison de 3 pièces (76 m²) à Montagnac MAISON 3 PIÈCES - PROCHE DE BÉZIERS En vente : à 19 km de la mer Méditerranée et à quelques kilomètres de Béziers, à Montagnac (34530), ayez le coup de coeur pour cette maison de 3 pièces de plain-pied de 76 m² et de 332 m² de terrain. Elle propose deux chambres, une cuisine, un cellier, une salle de bains et un garage. (Carrelage inclus dans toutes les pièces / Raccordements inclus). L'École Primaire Privée de Puységur, le Collège Jules Ferry, l'École Élémentaire Louis Pasteur et l'École Maternelle Jules Ferry se trouvent à moins de 10 minutes à pied, tout comme une crèche. Il y a un accès à l'autoroute A75 à 4 km. Il y a des boulangeries, quatre commerces, un bureau de poste, trois épiceries et quatre boucheries-charcuteries à quelques minutes à peine. Elle est à vendre pour la somme de 235 000 €. Pour plus d'information contacter (Anthony BALLESTER : 06.27.21.51.55) Maisons de Manon Béziers pour échanger sur votre projet et réaliser une étude gratuite. (Plan personnalisable). Tous nos ouvrages sont réalisés sur-mesure en fonction de vos attentes et de nos échanges avec vous ainsi que dans le respect de la règlementation RE 2020. Ce projet comporte les garanties suivantes: Contrat de construction CCMI. Dommage/Ouvrage. RC Garantie décennale. Parfaite achèvement. Etude de sol G2. Prix et délais convenu. Garantie financière Pour votre tranquillité nous nous occupons de toutes les formalités administratives.