

- Prix
- 1 254 000 €
Maison neuve • Antony (92)
- Nom et prix
- Terrain à bâtir Antony (92160) • 1 254 000 €
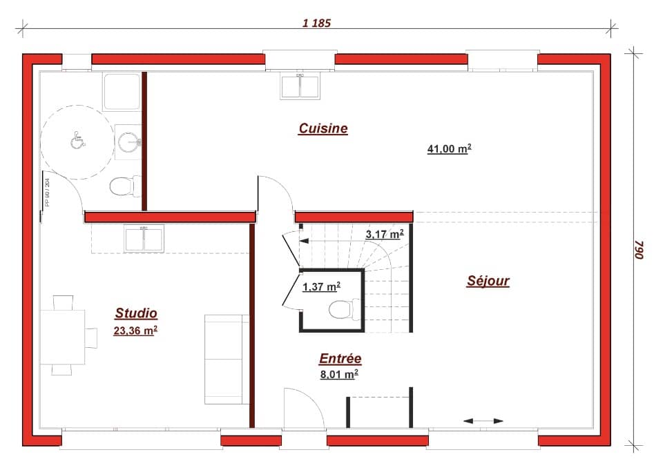
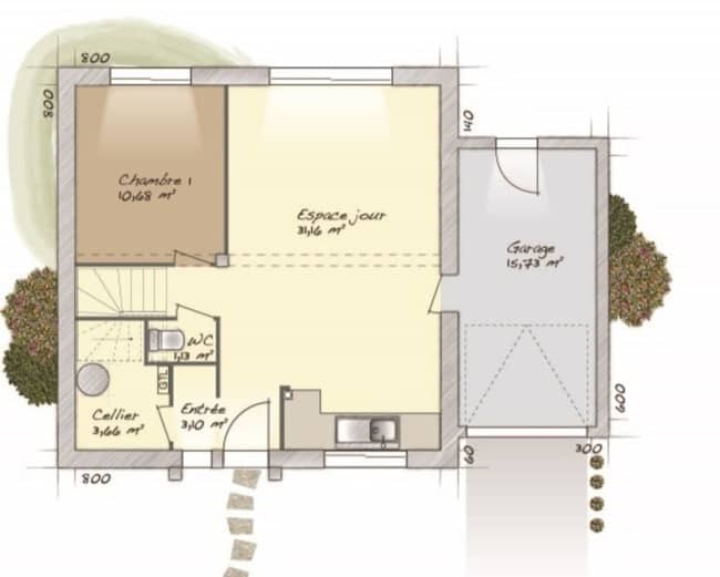
Maisons BERVAL, votre constructeur de confiance, vous propose une sélection de maisons d'exception au coeur de la commune. Chaque modèle allie modernité, confort et élégance, conçu pour répondre à toutes vos attentes. Modèle Batignolles Maison individuelle Batignolles Le modèle Batignolles est une parfaite fusion entre tradition et modernité, offrant une maison au caractère unique et au confort inégalé. Cette maison, dont la surface habitable est variable selon les configurations, propose des espaces de vie chaleureux, une cuisine ouverte sur le séjour pour des moments conviviaux, des chambres spacieuses et des salles de bain modernes. Le jardin est idéal pour des activités en plein air, tandis que le garage intégré assure votre confort quotidien. Vivez dans une maison avec du caractère. Pourquoi choisir Maisons BERVAL ? • Expertise locale : Implantés à Antony, nous connaissons parfaitement les spécificités de la région. • Qualité supérieure : Nos maisons sont construites avec des matériaux de haute qualité et un savoir-faire reconnu. • Personnalisation : Chaque modèle peut être adapté à vos besoins et à vos goûts. N'attendez plus pour réaliser votre rêve de maison individuelle! Pour de plus amples informations veuillez contacter Sébastien LAFAYE - 06/26/89/32/04 Terrain vu avec notre partenaire foncier, sous réserves de disponibilité Prix hors frais de notaire et hors frais annexes











