

- Prix
- 399 000 €
Maison neuve • Évecquemont (78)
- Nom et prix
- Terrain à bâtir Évecquemont (78740) • 399 000 €
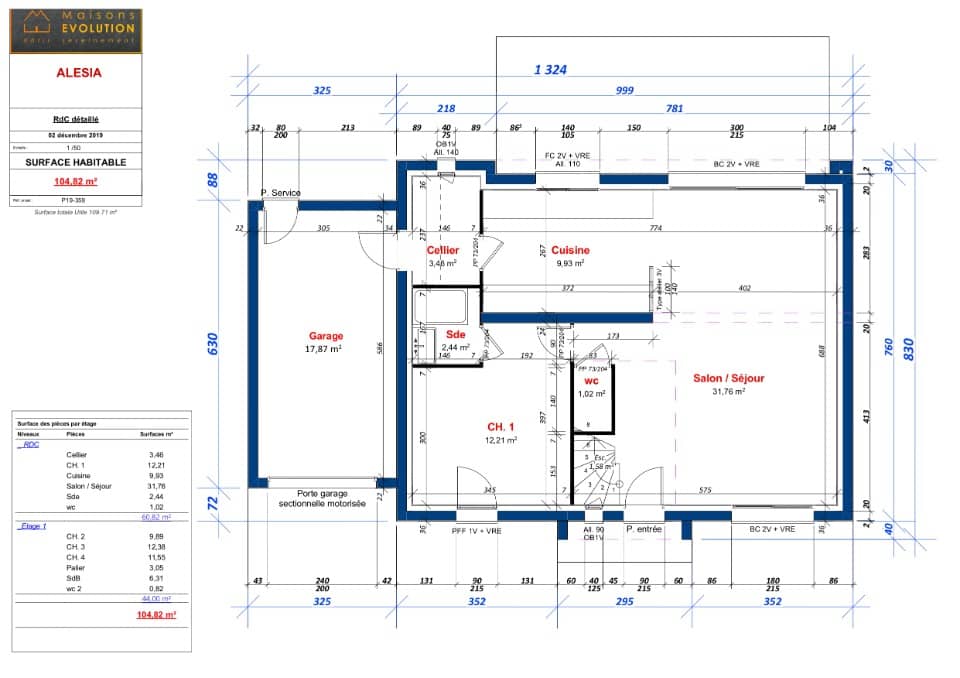
Vente : Projet de construction maison de 5 pièces (98 m²) à Évecquemont - Un cadre de vie idéal à proximité de Paris ! Emplacement privilégié - Proche de la gare de Vaux-sur-Seine (35 min de Paris) Située à Évecquemont (78740), cette superbe maison neuve de 5 pièces et 98 m² vous offre un cadre de vie exceptionnel. À seulement 5 minutes de la gare de Vaux-sur-Seine (Transilien J) vous profiterez d'un emplacement idéal pour allier tranquillité et proximité de la capitale. Une maison fonctionnelle et lumineuse Cette maison moderne s'étend sur deux niveaux et se compose de 4 chambres spacieuses, d'une cuisine équipée, et de deux salles de bains, offrant tout le confort nécessaire pour une famille. La construction récente garantit des matériaux de qualité et un aménagement optimisé pour répondre à vos besoins. Le terrain de 800 m², entièrement viabilisé, vous permettra d'aménager un jardin, une terrasse ou tout autre espace extérieur selon vos envies, pour profiter pleinement des beaux jours. Vous bénéficierez de la proximité immédiate des commerces, ainsi que des écoles. Prix de vente : 399 000 € Cette maison représente une occasion unique de devenir propriétaire d'un bien moderne dans un secteur recherché. Ne manquez pas cette opportunité ! Pour plus d'informations et pour imaginer votre future maison avec Maisons Evolution, contactez notre agence. Contactez Caroline BETHERY (O6-81-87-74-31) pour obtenir de plus amples renseignements sur ce projet de construction.











