

- Prix
- 245 000 €
Maison neuve • Gratentour (31)
- Nom et prix
- Terrain à bâtir Gratentour (31150) • 245 000 €
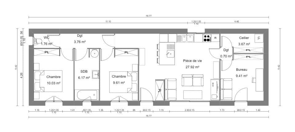
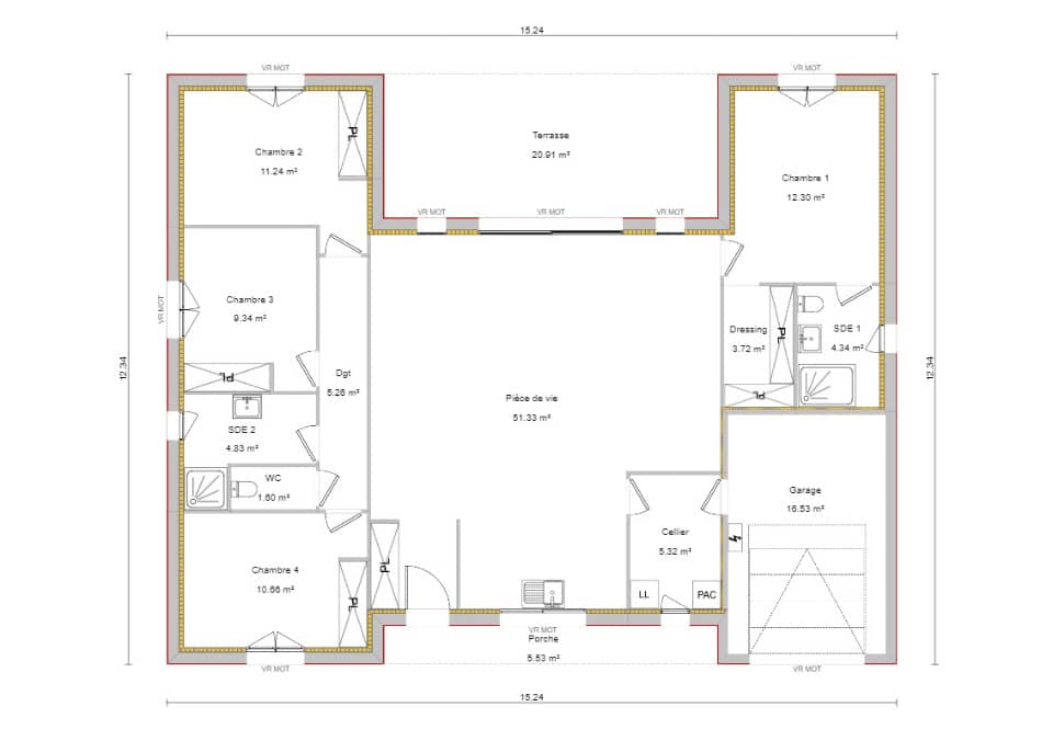
L'agence Maisons France Confort d'AUCAMVILLE conçoit pour vous cette maison neuve aux dernières normes à 7 minutes de GRATENTOUR . Sur une parcelle de 900 m², le modèle présenté est OPTIMA 85 E. Conception traditionnelle à étage, fonctionnelle et personnalisable, elle se compose au rez-de-chaussée, d'une entrée avec accès au cellier, d'une lumineuse pièce de vie avec séjour/cuisine de 30m², un WC. A l'étage vous trouverez 3 chambres et une salle de bains. Le garage de 15 m² est intégré à la maison et accessible par le cellier. Environnement très agréable avec les commodités à proximité et Toulouse accessible en 20 minutes. Contactez l'agence Maisons France Confort d'AUCAMVILLE au 05 34 43 84 38 Xavier FEUGUEUR. PRIX : 245 000 € HF










