

- Prix
- 689 000 €
Maison neuve • Villemomble (93)
- Nom et prix
- Terrain à bâtir () • 689 000 €
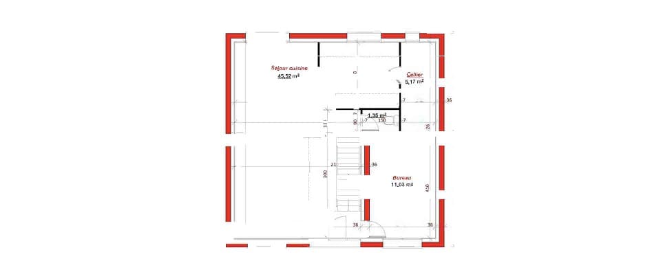
VENTE d'une maison de 7 pièces (152 m²) à Villemomble MAISON 7 PIÈCES NEUVE À vendre : à côté du RER E (station Le Raincy-Villemomble-Montfermeil, 15 min de Paris), à Villemomble (93250), nous sommes heureux de vous proposer cette maison de 7 pièces de 152 m² et de 300 m² de terrain. Cette maison compte 2 niveaux. Son intérieur inclut quatre chambres, une cuisine et deux salles de bains. La maison est neuve. Des établissements scolaires du primaire et du secondaire sont implantés à moins de 10 minutes à pied, tout comme une crèche. Niveau transports, on trouve la station de RER Le Raincy-Villemomble-Montfermeil (ligne E) ainsi que deux gares (Le Raincy-Villemomble-Montfermeil et Les Coquetiers) à quelques pas du bien. Il y a une bibliothèque, deux tennis, un bassin de natation, des commerces, des boulangeries, des supermarchés, des épiceries et des boucheries-charcuteries dans les environs. Le marché Avenue Outrebon anime le quartier. Son prix de vente est de 689 000 €. Contactez notre agence (THAREAU Franck : 01-48-81-08-79) pour toute information sur cette maison. Faites de vos projets immobiliers une réalité avec Maisons Berval Le Perreux-sur-Marne.












