

- Prix
- 270 000 €
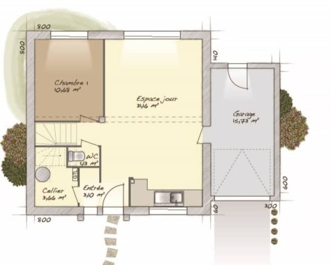
Maison neuve • VILLECRESNES (94)
- Nom et prix
- Projet de construction d'une maison 142 m² avec terrain à VILLECRESNES (94) • 270 000 €
Eduardo Neto 06/62/46/62/27 vous propose un projet de construction 100% sur mesure. Le Pavillon Français construit des maisons sur-mesure alliant design, caractère et qualité depuis plus de 30 ans. Chaque projet est unique : vous choisissez la configuration, les matériaux, les finitions… nous concrétisons votre vision. Nos constructions sont encadrées par le CCMI, un contrat garantissant un prix définitif et des délais de livraison précis. Grâce à notre certification NF Habitat, vous bénéficiez d’un haut niveau de confort, de performance et de durabilité. Avec un accompagnement personnalisé à chaque étape, nous faisons de votre maison un lieu unique qui vous ressemble. Faites confiance à un constructeur expérimenté, à l’écoute et engagé à vos côtés pour bâtir la maison de vos rêves. Contactez Eduardo NETO au 06 62 46 62 27 (Le Pavillon Français - Agence d'Ozoir-la-Ferrière). Construction aux normes RE2020. Prix avec assurance dommages-ouvrage comprise, hors VRD, terrain viabilisé, frais de notaire non compris, frais divers non compris. Terrain sélectionné et vu pour vous sous réserve de disponibilité et au prix indiqué par notre partenaire foncier. Conditions et visuels non contractuels. Cette annonce a été créée et diffusée avec le logiciel VITAHOME. Contactez Eduardo NETO au 06 62 46 62 27 (Le Pavillon Français - Agence d'Ozoir-la-Ferrière).












