

- Prix
- 469 500 €
Maison neuve • Saint-Thibault-des-Vignes (77)
- Nom et prix
- Terrain à bâtir () • 469 500 €
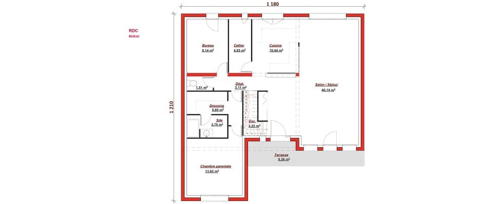
Cette grande maison de famille présente une façade harmonieuse et lumineuse avec une toiture quatre pans. Son bardage zinc SP line horizontal mêlé à un duo d'enduit dans les camaïeux de gris allie l'esthétisme à la modernité. Le rez-de-chaussée propose une entrée accueillante, un bureau, un vaste séjour/salon avec accès direct à la cuisine et son cellier. L'étage réuni trois chambres dont une suite parentale avec dressing et salle d'eau privative et une salle de bains. Le modèle d'inspiration DAUPHINE 129 est totalement adaptable à vos envies et besoins et personnalisable grâce à de nombreuses options de finition. Maisons Berval, constructeur de maison sur mesure, vous accompagne dans vos projets immobiliers. Pour toute information sur le terrain ou sur les démarches à suivre, contactez Chloé Burot Maisons Berval est certifiée NF HQE (Haute Qualité Environnementale)











