

- Prix
- 323 800 €
Maison neuve • Penchard (77)
- Nom et prix
- Terrain à bâtir () • 323 800 €
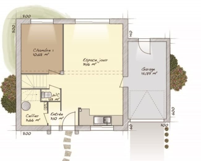
VENTE : maison de 6 pièces (98 m²) à Penchard PROCHE D'AULNAY-SOUS-BOIS - MAISON 6 PIÈCES NEUVE Au pied du Transilien P (gare de Meaux, 25 min de Paris), ayez le coup de coeur pour cette maison de 6 pièces de 98 m² et de 500 m² de terrain à Penchard (77124). Cette maison compte 2 niveaux. Elle dispose de quatre chambres, d'une cuisine et d'une salle de bains. La maison est neuve. On trouve une école primaire dans le quartier. Niveau transports, il y a trois gares (Meaux, Trilport et Esbly) à moins de 10 minutes en voiture. On trouve un tennis, une bibliothèque et une boulangerie dans les environs. Son prix de vente est de 323 800 €. Contactez notre agence (DARTEVELLE Sébastien : 06-24-63-58-60) pour plus de renseignements sur la maison, sur les démarches à suivre ou sur les modalités de vente. Maisons Balency Dammartin-en-Goële vous accompagne dans tous vos projets immobiliers et dans toutes vos démarches.