

- Prix
- 340 000 €
Maison neuve • Crégy-lès-Meaux (77)
- Nom et prix
- Terrain à bâtir Crégy-lès-Meaux (77124) • 340 000 €
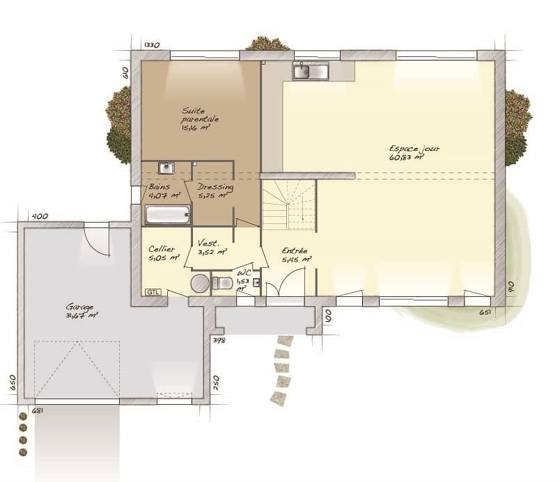
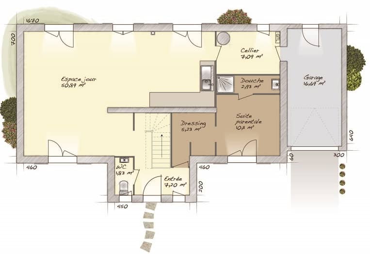
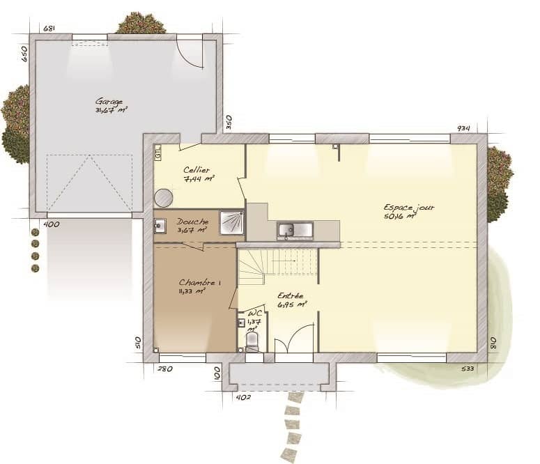
Crégy-lès-Meaux : maison de 6 pièces (115 m²) en vente PROCHE D'AULNAY-SOUS-BOIS - MAISON 6 PIÈCES NEUVE À vendre : à quelques minutes du Transilien P (gare de Meaux, 25 min de Paris), votre agence Maisons France Confort Magny-le-Hongre est heureuse de vous proposer à Crégy-lès-Meaux (77124), cette maison de 6 pièces de 115 m². Son intérieur offre quatre chambres, une cuisine et deux salles de bains. Le terrain de la propriété est de 907 m². Cette maison possède 2 niveaux. Elle est neuve. On trouve l'École Élémentaire Jean Rostand, le Collège George Sand et l'École Maternelle Jacques Tati à moins de 10 minutes à pied. Côté transports, il y a trois gares (Meaux, Trilport et Esbly) à moins de 10 minutes en voiture. Il y a une bibliothèque, un tennis, une boulangerie, deux commerces, deux supermarchés et un bureau de poste à proximité du bien. Elle est à vendre pour la somme de 340 000 €. Contactez notre agence (YAHIAOUI Cedric : 06-66-57-00-63) pour toute question sur la maison ou sur les modalités de vente.












