

- Prix
- 280 000 €
Maison neuve • Meaux (77)
- Nom et prix
- Maison de 90m² + terrain sur Meaux • 280 000 €
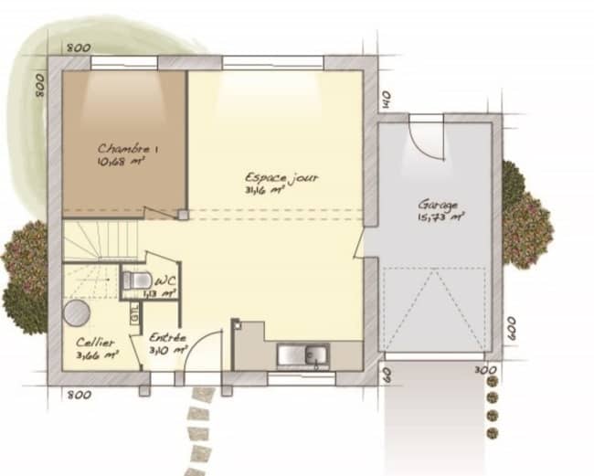
Vous rêvez d'une maison neuve, moderne et modulable selon vos besoins ? Maisons STILL vous propose ce projet de construction sur la commune de Meaux, une ville dynamique offrant un cadre de vie agréable et toutes les commodités essentielles ! Caractéristiques du projet : Surface habitable : 90m² – entièrement personnalisable Rez-de-chaussée : pièce de vie lumineuse avec cuisine ouverte, baie vitrée et WC séparé. À l'étage : possibilité d'aménager 3 ou 4 chambres, 1 WC indépendant et une salle de bain avec douche à l'italienne ou baignoire. Matériaux de qualité Plans personnalisables pour un intérieur qui vous ressemble. Accompagnement complet : de la conception de votre maison jusqu'à la remise des clés. Expertise et personnalisation : maison conçue pour répondre à vos attentes tout en respectant votre budget. Chantier propre Garantie constructeur et respect des normes RE 2020 pour une maison économe en énergie. Un emplacement idéal à Meaux : Gare SNCF (Transilien P) permettant de rejoindre Paris en 25 minutes Accès rapide à l'A4 pour une mobilité facilitée Écoles, collèges, lycées et crèches à proximité Commerces, supermarchés et centres commerciaux accessibles en quelques minutes Espaces verts et loisirs : bords de Marne, parcs, infrastructures sportives Prix attractif et accompagnement personnalisé : Notre équipe vous guide à chaque étape, de la conception aux finitions, pour faire de votre projet une réalité ! Pour plus d'informations, contactez monsieur MABIOLA de Maisons STILL dès aujourd'hui au 06 24 60 79 67. Garanties et assurances obligatoires incluses (voir détails en agence). Prix indicatif hors peintures, hors options et hors frais annexes. Référence annonce : JM-MEAUX











