

- Prix
- 366 624 €
Maison neuve • Montgé-en-Goële (77)
- Nom et prix
- Terrain à bâtir () • 366 624 €
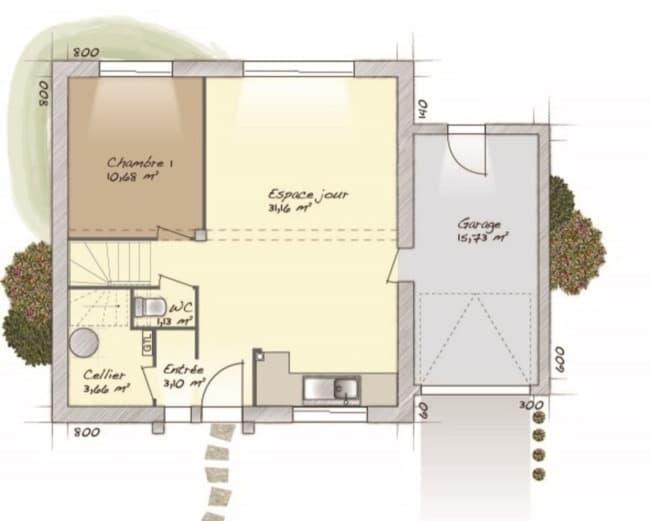
VENTE d'une maison T6 (98 m²) à Montgé-en-Goële PROCHE DE SAINT-DENIS - MAISON 6 PIÈCES NEUVE À vendre : au pied du Transilien K (gare de Dammartin-Juilly-Saint-Mard, 30 min de Paris), notre agence Maisons Balency Dammartin-en-Goële est ravie de vous présenter cette maison de 6 pièces de 98 m² et de 550 m² de terrain à Montgé-en-Goële (77230). Elle inclut quatre chambres, une cuisine et une salle de bains. Il s'agit d'une maison de 2 niveaux. Elle est neuve. On trouve une école maternelle dans le quartier. Niveau transports en commun, il y a la station de RER Mitry-Claye (ligne B) ainsi que cinq gares à moins de 10 minutes en voiture. On trouve un tennis et une boucherie-charcuterie à quelques minutes du logement. Son prix de vente est de 366 624 €. Prenez contact avec Sébastien DARTEVELLE (tél : 06-24-63-58-60) pour obtenir de plus amples informations sur cette maison, sur les modalités de vente ou sur les démarches à suivre. Concrétisez vos projets immobiliers avec Maisons Balency Dammartin-en-Goële.