
Maison neuve • Sainte-Jamme-sur-Sarthe (72)
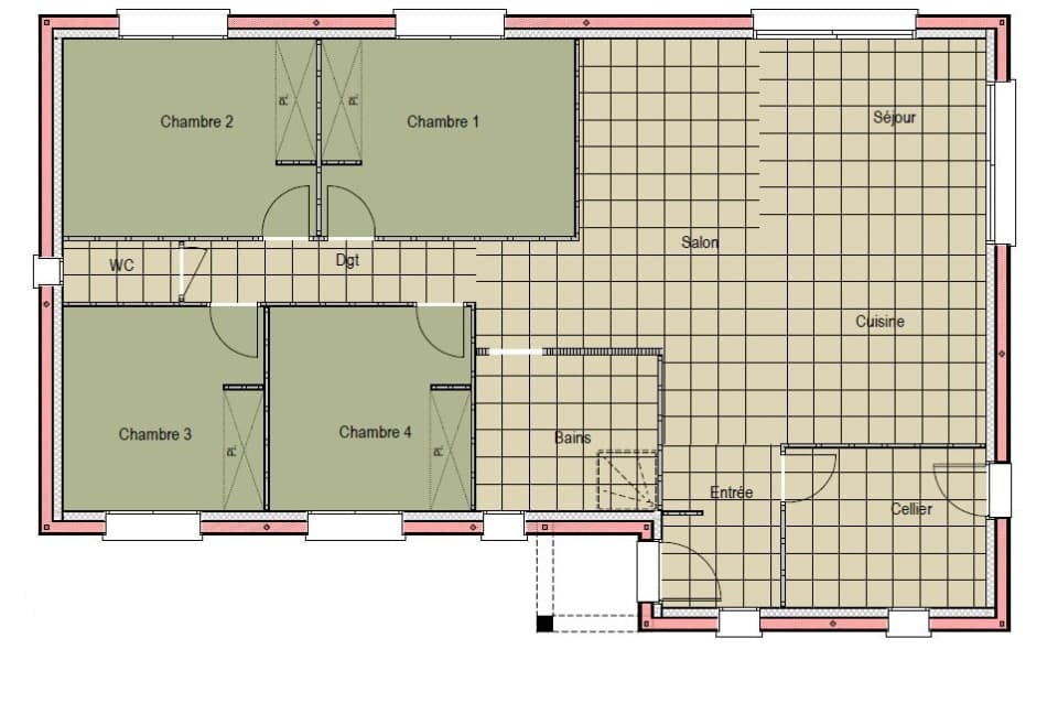
Sainte-Jamme-sur-Sarthe : maison T5 (93 m²) en vente PROCHE DU MANS - MAISON 5 PIÈCES NEUVE À 18 km du Mans, nous sommes heureux de vous présenter en vente à Sainte-Jamme-sur-Sarthe (72380), cette maison de 5 pièces de plain-pied de 93 m². Conçue de plain-pied, elle propose quatre chambres, une cuisine et une salle de bains. La maison est neuve. Le terrain du bien s'étend sur 414 m². Il y a l'École Primaire Publique Casimir Rouzay et le Collège Jean Rostand à moins de 10 minutes à pied. Niveau transports, on trouve quatre gares à moins de 10 minutes en voiture. Les autoroutes A28 et A11 sont accessibles à moins de 10 km. Il y a un tennis, une bibliothèque, deux boulangeries, trois commerces, un bureau de poste et une épicerie dans les environs. Elle est à vendre pour la somme de 204 000 €. N'hésitez pas à prendre contact avec Luc LIVET (tél : 07-77-76-37-30) pour obtenir de plus amples informations sur la maison ou sur les démarches à suivre. Concrétisez vos projets immobiliers avec Maine Construction Saint-Saturnin.
Proposé par MAINE CONSTRUCTION - LE MANS










