

- Prix
- 211 500 €
Maison neuve • Pleslin-Trigavou (22)
- Nom et prix
- Terrain à bâtir Pleslin-Trigavou (22490) • 211 500 €
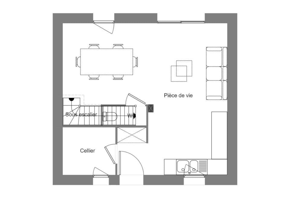
Maison F4 (67 m²) à vendre à Pleslin-Trigavou IDÉALEMENT SITUÉE - MAISON 4 PIÈCES NEUVE À vendre : localisée à 8 km de la Manche et à 14 km de Saint-Malo, idéalement située dans Pleslin-Trigavou (22490), laissez vous charmer par cette maison de 4 pièces de 67 m² et de 348 m² de terrain avec vue sur jardin. Son intérieur est composé de trois chambres, d'une cuisine et d'une salle de bains. Cette maison compte 2 niveaux. Elle est neuve. Cette maison se situe dans un secteur prisé. L'École Primaire Privée Saint Joseph et l'École Primaire Publique Georges Hervé sont implantées à moins de 10 minutes à pied. Niveau transports en commun, il y a quatre gares à moins de 10 minutes en voiture. La nationale N176 est accessible à 2 km. On trouve un tennis, une boulangerie, une supérette et un bureau de poste dans les environs. Elle est à vendre pour la somme de 211 500 €. N'hésitez pas à prendre contact avec Dimitri MESAS (02-99-83-07-20) pour toute information sur la maison ou sur les démarches à suivre. Maisons de l'Avenir Cesson-Sévigné est là pour vous accompagner à toutes les étapes de votre projet.