

- Prix
- 243 993 €
Maison neuve • Grenade (31)
- Nom et prix
- Terrain à bâtir Grenade (31330) • 243 993 €
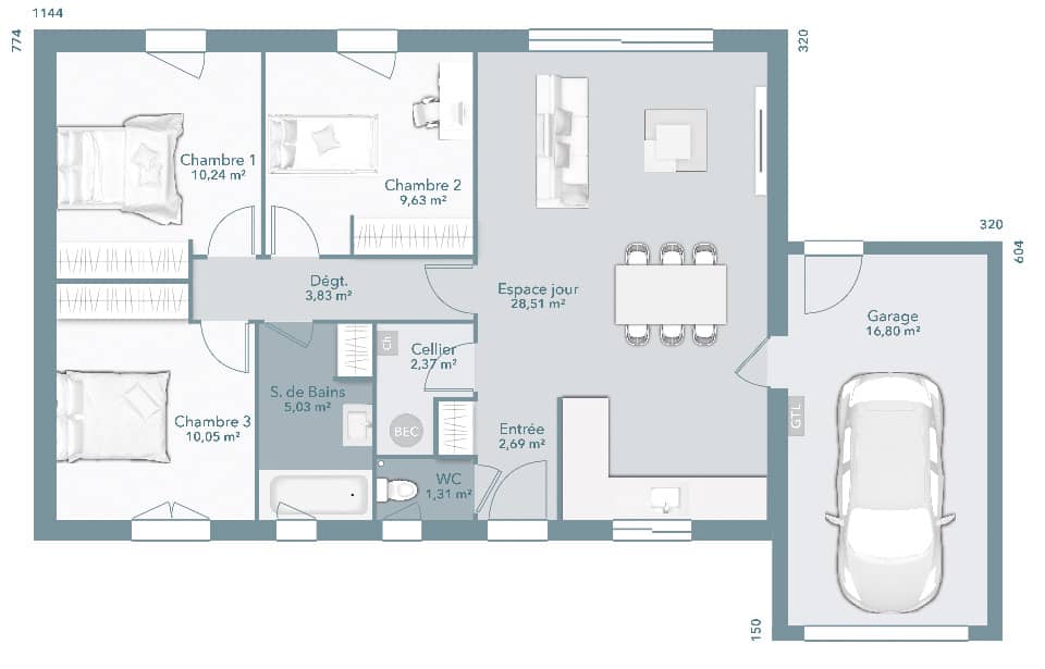
Terrain viabilisé de 420 m² + Maison Optima 90 à construire proche de Grenade - Le projet idéal pour profiter de votre retraite avec Maisons France Confort ! Vous souhaitez vous rapprocher de vos proches et profiter pleinement de votre retraite ? Ce terrain de 420 m², viabilisé et situé à proximité de Grenade, est l'endroit parfait pour installer votre nouveau chez-vous. Le modèle Optima 90 de 90 m², avec un garage, 3 chambres et une grande pièce de vie lumineuse, est idéal pour un couple à la recherche de confort et de simplicité au quotidien. Pourquoi choisir Maisons France Confort ? Le leader de la construction de maisons individuelles en France, pour un projet serein et de qualité. Optima 90 : un modèle bien conçu, alliant praticité et confort, avec une belle pièce de vie ouverte et des chambres spacieuses. Accompagnement sur-mesure : nous vous accompagnons tout au long de votre projet, de la recherche du financement à la remise des clés. Un projet clé en main : une construction rapide, sans tracas, pour vous permettre de profiter de votre nouvelle maison en toute tranquillité. Rapprochez-vous de vos petits-enfants dans un cadre de vie calme et agréable. Prix terrain+ maison: 243 993€ hf Contactez-nous dès aujourd'hui pour une étude gratuite et découvrez comment Maisons France Confort peut concrétiser votre projet de retraite sereine et épanouie ! Contactez l'agence MAISONS FRANCE CONFORT d'Aucamville au 05.34.43.84.38.










