

- Prix
- 430 892 €
Maison neuve • Saint-Leu-la-Forêt (95)
- Nom et prix
- Terrain à bâtir Saint-Leu-la-Forêt (95320) • 430 892 €
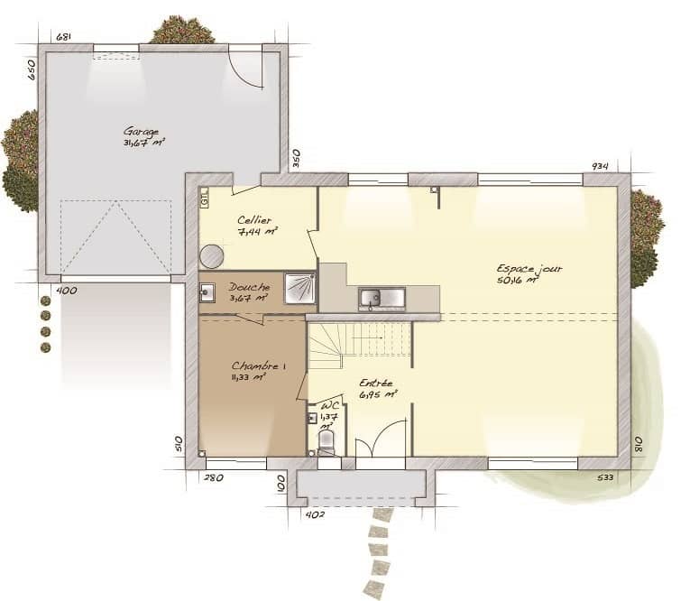
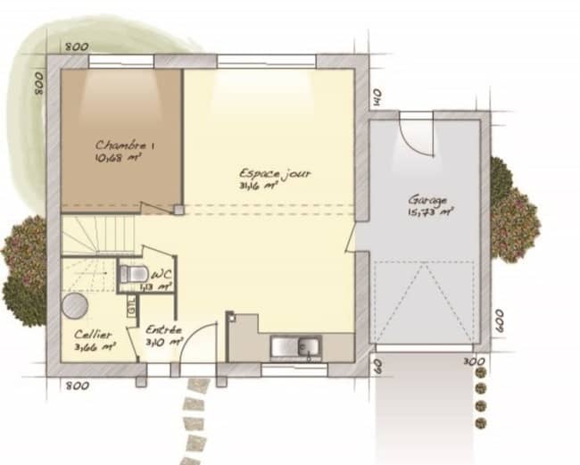
VENTE d'une maison de 6 pièces (102 m²) à Saint-Leu-la-Forêt IDÉALEMENT SITUÉE - MAISON 6 PIÈCES NEUVE À deux pas du Transilien H (25 min de Paris), venez découvrir cette maison de 6 pièces de 102 m² avec vue sur rue idéalement située dans Saint-Leu-la-Forêt (95320). Elle dispose de quatre chambres, d'une cuisine et d'une salle de bains. Le terrain de la maison s'étend sur 250 m². Cette maison possède 2 niveaux. Elle est neuve. La maison se trouve dans un secteur prisé. Il y a des établissements scolaires primaires à moins de 10 minutes à pied et une crèche. Niveau transports en commun, on trouve la gare Saint-Leu-la-Forêt juste à côté. Il y a un tennis, des commerces, des boulangeries, une supérette, des épiceries et un bureau de poste à quelques minutes. Enfin, le marché Place de la Mairie anime le quartier. Elle est à vendre pour la somme de 430 892 €. Contactez notre agence (TALAMONI Christophe : 06-49-55-08-27) pour tout renseignement sur la maison ou sur les démarches à suivre. Maisons Balency Pierrelaye est là pour vous accompagner dans tous vos projets immobiliers.











