

- Prix
- 736 000 €
Maison neuve • Fontenay-sous-Bois (94)
- Nom et prix
- Terrain à bâtir Fontenay-sous-Bois (94120) • 736 000 €
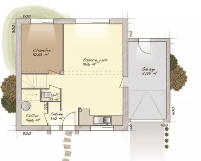
Maison F6 (98 m²) à vendre à Fontenay-sous-Bois MAISON 6 PIÈCES NEUVE À côté du RER A (5 min de Paris), Maisons Balency Saint-Maur-des-Fossés vous présente cette maison de 6 pièces de 98 m² à Fontenay-sous-Bois (94120). Son intérieur comporte quatre chambres, une cuisine et une salle de bains. Le terrain du bien s'étend sur 495 m². Cette maison possède 2 niveaux. Elle est neuve. Tous les types d'établissements scolaires (maternelle, élémentaire et secondaire) sont implantés à moins de 10 minutes à pied, tout comme six structures d'accueil pour les tout-petits. Niveau transports, on trouve la station de RER Fontenay-Sous-Bois (ligne A) dans les alentours. Il y a une bibliothèque, un bowling, un tennis, un bassin de natation, des commerces, des boulangeries, deux supermarchés, des boucheries-charcuteries et un bureau de poste à quelques minutes. Enfin, le marché Place Moreau David a lieu tous les dimanches matin. Elle est à vendre pour la somme de 736 000 €. Prenez contact avec notre agence (Aurelien MONTANIER : 06-24-66-88-34) pour plus de renseignements sur ce bien ou sur les modalités de vente. Maisons Balency Saint-Maur-des-Fossés est là pour vous accompagner dans tous vos projets immobiliers.