

- Prix
- 188 529 €
Maison neuve • L'ISLE-ADAM (95)
- Nom et prix
- Projet de construction d'une maison 138 m² avec terrain à L'ISLE-ADAM (95) • 188 529 €
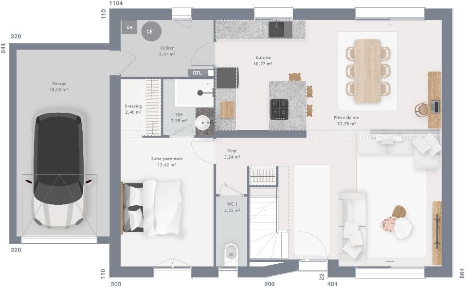
A L'ISLE-ADAM sur un terrain de 443 m², MAISONS SESAME vous propose de réaliser cette maison neuve d'une surface de 138 m² habitables avec 5 chambres. Le modèle SAPHIR 140 offre une surface habitable de 138 m², avec un design élégant souligné par son fronton sur la façade, lui conférant une touche raffinée et chaleureuse. Au rez-de-chaussée, la maison dispose d’un grand séjour lumineux, d'une cuisine ouverte, ainsi qu’une chambre supplémentaire qui peut également être utilisée comme espace pour télétravailler. Un WC séparé complète ce niveau. À l’étage, vous trouverez 4 chambres, dont une suite parentale avec salle de douche privée. Une salle de bains commune est également présente, idéale pour toute la famille. MAISONS SÉSAME vous propose les prestations suivantes : - Plans des maisons modulables et adaptables selon vos besoins et les spécificités de votre terrain - Large choix de systèmes de chauffage performants et économes en énergie - Sélection de matériaux de qualité garantissant confort et durabilité - Accompagnement sur-mesure pour la recherche et l’acquisition de votre terrain - Construction conforme à la réglementation en vigueur et à la norme RE2020 - Maisons certifiées NF HABITAT, gage de qualité, de performance et de confort Informations du terrain : En pente, quartier pavillonnaire, calme. Demandez une étude gratuite et personnalisée de votre projet de construction ! Étude gratuite de votre projet de construction ! De nombreux terrains disponibles dans votre secteur. Informations légales : Maisons Sésame, constructeur de maisons individuelles, propose une sélection de terrains en collaboration avec ses partenaires fonciers, sous réserve de disponibilité. Il n’agit pas en tant que mandataire pour la vente de ces terrains. Nos maisons, certifiées NF Habitat et conformes à la réglementation thermique en vigueur, vous garantissent un habitat durable et économe en énergie. Découvrez un large choix de modèles adaptés aux besoins de toute la famille. Informations tarifaires : Les prix indiqués sont donnés à titre indicatif et n’incluent pas les frais annexes (frais de notaire, raccordements, etc.). Les visuels et prix présentés sont non contractuels. Pour plus de détails, consultez nos conditions en agence. N° ORIAS IOBSP 13007108 – RCS Versailles 388 867 426. Les informations sur les risques auxquels ce bien est exposé sont disponibles sur le site Géorisques : www.georisques.gouv.fr Cette annonce a été créée et diffusée avec le logiciel VITAHOME. Contactez Aurélien ROUBLIN au 06 30 09 73 72 ou au 01 39 83 27 47 (Maisons Sésame - Agence d'Eaubonne).











