

- Prix
- 323 623 €
Maison neuve • Acy-en-Multien (60)
- Nom et prix
- Terrain à bâtir () • 323 623 €
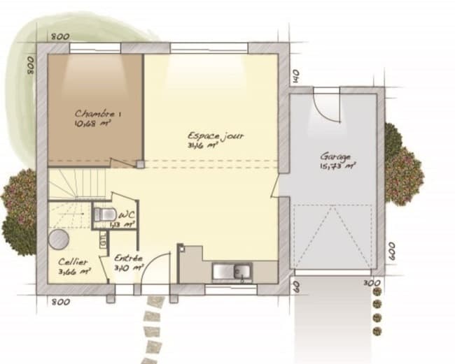
Acy-en-Multien : maison de 6 pièces (98 m²) à vendre MAISON 6 PIÈCES NEUVE - PROCHE DE MEAUX En vente : à quelques minutes du Transilien P (gare de Crouy-sur-Ourcq, 55 min de Paris), à Acy-en-Multien (60620), votre agence Maisons Balency Dammartin-en-Goële est ravie de vous présenter cette maison de 6 pièces de 98 m² et de 500 m² de terrain. Elle est composée de quatre chambres, d'une cuisine et d'une salle de bains. Cette maison possède 2 niveaux. Elle est neuve. Une école primaire est implantée dans le quartier. Côté transports en commun, il y a deux gares (Crouy-sur-Ourcq et Mareuil-sur-Ourcq) à moins de 10 minutes en voiture. La nationale N2 est accessible à 10 km et Meaux est située à 17 km. On trouve une bibliothèque à quelques minutes. Elle est à vendre pour la somme de 323 623 €. N'hésitez pas à prendre contact avec notre agence (Sébastien DARTEVELLE : 06-24-63-58-60) pour toute question sur cette maison ou sur les démarches à suivre. Maisons Balency Dammartin-en-Goële est là pour vous accompagner à toutes les étapes de votre projet.












