

- Prix
- 399 600 €
Maison neuve • Gambais (78)
- Nom et prix
- Terrain à bâtir Gambais (78950) • 399 600 €
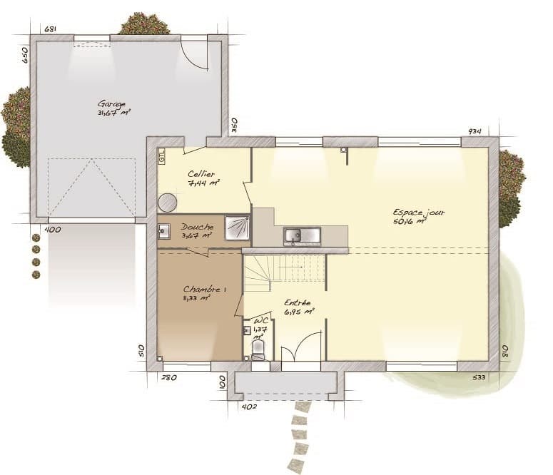
L'agence Maisons France Confort de Coignières propose ce magnifique projet, très attractif pour son lieu, ses prestations et son prix avec par exemple ce modèle R+combles aménagés (photo non contractuelle). Au rez-de-chaussée, une cuisine ouverte sur le séjour qui offre un espace de vie spacieux et harmonieux de plus de 45 m². Un cellier, un WC et une chambre avec salle d'eau complètent ce rez-de-chaussée. La distribution de l'étage optimise l'espace autour d'un palier, 3 chambres, 1 salle de bains et 1 WC indépendant. Norme RE2020, chauffage PAC, domotique sur les volets roulants... Modèle personnalisable en fonction de votre mode de vie, vos envies et budget. Les plus Maisons France Confort : une expérience solide de presque 100 ans, la maitrise de projets sur mesure, la sécurité du premier constructeur national. Le prix de cette annonce inclus le terrain, le modèle de maison proposé en exemple ainsi que tous les frais de viabilisation, raccordements, évacuation de terres excédentaires, accès chantier etc...pour rappel les frais de notaire sur le terrain et les taxes, les clôtures, l'ameublement et la décoration ne sont pas inclus. Pour d'avantage de précisions et pour un devis de construction personnalisé avant visite du terrain contactez votre agence Maisons France Confort de Coignières au 06.18.28.70.77












