

- Prix
- 389 000 €
Maison neuve • Gambais (78)
- Nom et prix
- Terrain à bâtir Gambais (78950) • 389 000 €
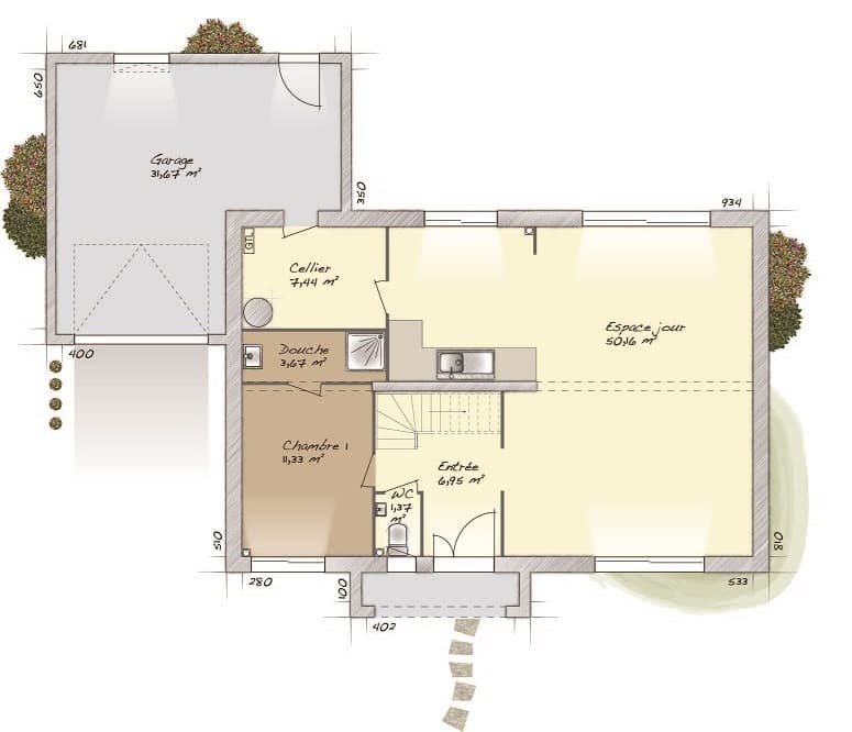
Eric Mouthon Conseiller Commercial 06/69/56/80/81 Étude gratuite et personnalisée sur rendez-vous. Maison RE 2020. Découvrez ce terrain de 2600m² dans un village qui a su conserver son authenticité et sa tranquillité. Cadre de Vie Idéal : Écoles sur place et environnement calme. Agencement Flexible : 4 chambres lumineuses et des plans entièrement personnalisables pour un espace de vie qui vous ressemble. Performance RE 2020 : Une solution thermique et acoustique de pointe, garantissant un confort d'été supérieur (idéal contre la chaleur) et des économies d'énergie. Plancher Chauffant pour une chaleur douce et uniforme, sans radiateur encombrant. Volets Roulants (VR) motorisés et centralisé. Saisissez cette opportunité de bâtir une maison intelligente, éco-performante et sur mesure, dans un environnement paisible.












