

- Prix
- 171 000 €
Maison neuve • Lonzac (17)
- Nom et prix
- Terrain à bâtir Lonzac (17520) • 171 000 €
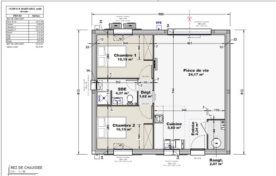
VENTE d'une maison 4 pièces (80 m²) à Lonzac IDÉALEMENT SITUÉE - MAISON 4 PIÈCES NEUVE À vendre : localisée à 44 km de l'océan Atlantique et à deux pas de Saintes, Maisons de la Côte Atlantique Saintes vous présente cette maison de 4 pièces de plain-pied de 80 m² et de 1 100 m² de terrain idéalement située dans Lonzac (17520). Son intérieur comporte trois chambres, une cuisine et une salle de bains. La maison est neuve. Cette maison se situe dans un secteur convoité. L'École Élémentaire Lonzac se trouve à moins de 10 minutes à pied. L'autoroute A10 et la nationale N141 sont accessibles à moins de 16 km. Il y a une boulangerie à quelques minutes de la maison. Elle est proposée à l'achat pour 171 000 €. Prenez contact avec Patrick OLIVRÉ (O6-72-31-16-34) pour toute information sur la maison, sur les démarches à suivre ou sur les modalités de vente. Faites de vos projets immobiliers une réalité avec Maisons de la Côte Atlantique Saintes.












