

- Prix
- 496 050 €
Maison neuve • Cesson (77)
- Nom et prix
- Terrain à bâtir Cesson (77240) • 496 050 €
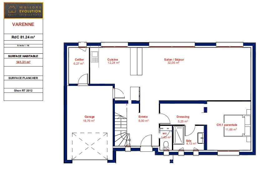
Boissettes : maison T6 (141 m²) à vendre EMPLACEMENT PRIVILÉGI- MAISON 6 PIÈCES NEUVE À vendre : à proximité de la station Le Mée (Paris à 35 min avec le RER D), bénéficiant d'un emplacement d'exception dans Boissettes (77350), nous vous présentons cette maison de 6 pièces de 141 m² et de 678 m² de terrain. C'est une maison de 2 niveaux. Elle compte cinq chambres, une cuisine et deux salles de bains. La maison est neuve. Cette propriété se trouve dans un quartier recherché. Niveau transports, il y a la ligne de RER D (Vosves) ainsi que 11 gares à moins de 10 minutes en voiture. On trouve un tennis et un commerce à quelques minutes à peine. Son prix de vente est de 496 050 €. Prenez contact avec Franck DORSAINT (07-66-67-97-06) pour tout renseignement sur la maison, sur les démarches à suivre ou sur les modalités de vente.