

- Prix
- 188 000 €
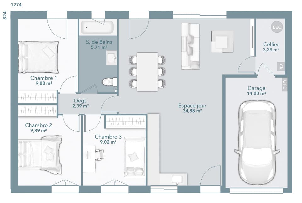
Maison neuve • L'Honor-de-Cos (82)
- Nom et prix
- Terrain à bâtir L'Honor-de-Cos (82130) • 188 000 €
Votre agence Maisons France Confort d'AUCAMVILLE vous propose ce beau projet maison + terrain à l'Honor de Cos dans le TARN et GARONNE. D'une architecture sobre et élégante, cette maison est conçue de manière ingénieuse et fonctionnelle. Ce modèle, EGA de 78m² avec garage accolé, a de nombreux atouts : 3 chambres, une salle de bains et une pièce de vie avec cuisine de plus de 30m². Des options peuvent être ajoutées au plan de base. Elle se trouve sur une parcelle de 1200 m² à 10 minutes des commodités et à 10 minutes de MONTAUBAN. Pour toutes informations, contactez l'agence MAISONS FRANCE CONFORT d'AUCAMVILLE au 05 34 43 84 38 Xavier FEUGUEUR. PRIX : 188 000 € HF










