

- Prix
- 295 000 €
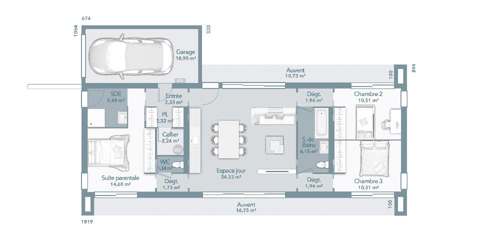
Maison neuve • L'Honor-de-Cos (82)
- Nom et prix
- Terrain à bâtir L'Honor-de-Cos (82130) • 295 000 €
NOUVEAUTE - L'agence Maisons France Confort d'AUCAMVILLE vous présente cette superbe construction moderne et économe de 95m² sur la commune de l'HONOR de COS . Sur une parcelle constructible de 1200 m² CALIFORNIA 95 offre des lignes design et se compose d'une entrée avec placards, un cellier, un WC, une magnifique pièce de vie séjour/cuisine de 35m² avec double exposition, une suite parentale et un espace nuit comprenant deux chambres et une salle de bains. Le garage de 18m² en option est accolé à la maison et accessible directement depuis l'intérieur. Dans un environnement agréable à seulement 10 minutes des commodités et 10 minutes de Montauban. Pour obtenir plus d'informations sur ce projet, contactez l'agence Maisons France Confort d'AUCAMVILLE au 05 34 43 84 38 Xavier FEUGUEUR. PRIX : 295 000 € HF










