

- Prix
- 599 000 €
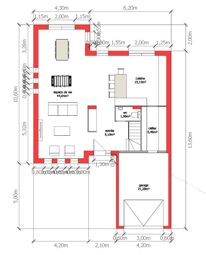
Maison neuve • Limours (91)
- Nom et prix
- Terrain à bâtir Limours (91470) • 599 000 €
Dans un village de charme situé à 3 minutes de Limours sur la commune de Pecqueuse, venez découvrir cette maison familiale tradi-moderne de 146 m² habitable aux volumes généreux, implantée sur un beau terrain plat de 540m². Vous profiterez d'un bel espace de vie de plus de 44m², avec une cuisine ouverte de 15m² donnant sur un cellier et garage, de trois chambres à l'étage (dont une suite parentale) et d'une terrasse accessible donnant sur le jardin. Maison disposant des nouvelles réglementations RE 2020 et certifiée NF Habitat HQE. Nous pourrons ensemble modifier les plans selon vos envies, vos besoins d'aménagement et laisser libre cours à votre imagination. Renseignez-vous auprès de Fabien LAROYE au 06/61/52/02/68/












