

- Prix
- 420 600 €
Maison neuve • Taverny (95)
- Nom et prix
- Terrain à bâtir Taverny (95150) • 420 600 €
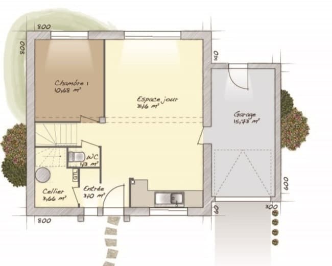
VENTE d'une maison de 6 pièces (102 m²) à Taverny CENTRE-VILLE - MAISON 6 PIÈCES NEUVE À 260 m du Transilien H (30 min de Paris), Maisons Balency Pierrelaye vous propose cette maison de 6 pièces de 102 m² avec vue sur jardin à Taverny (95150), en centre-ville. Elle compte quatre chambres, une cuisine et une salle de bains. Le terrain de cette maison s'étend sur 350 m². C'est une maison de 2 niveaux. Elle est neuve. Des établissements scolaires maternelles et élémentaires sont implantés à moins de 10 minutes à pied, tout comme une structure d'accueil pour les enfants en bas âge. Niveau transports en commun, il y a les gares Taverny et Vaucelles juste à côté. On trouve une bibliothèque, des commerces, des boulangeries, un supermarché, un bureau de poste et deux boucheries-charcuteries dans les environs. Enfin, 2 marchés animent les environs. Elle est proposée à l'achat pour 420 600 €. N'hésitez pas à prendre contact avec Christophe TALAMONI (06-49-55-08-27) pour toute question sur la maison ou sur les démarches à suivre. Donnez vie à vos projets immobiliers avec Maisons Balency Pierrelaye.











