

- Prix
 - 212 755 €
 
Maison neuve • Montbeton (82)
- Nom et prix
 - Terrain à bâtir Montbeton (82290) • 212 755 €
 
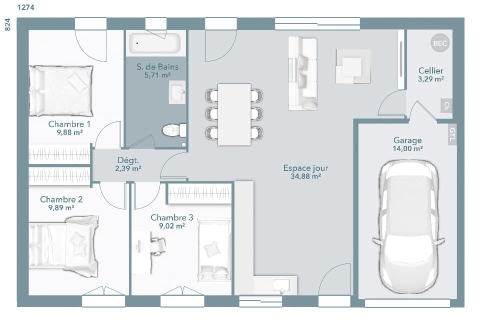
'Votre agence Maisons France Confort d'Aucamville vous propose ce beau projet maison + terrain à Montbeton S'installer dans une maison neuve RE 2020 n'est plus un rêve. S'accompagnant de 3 chambres, le modèle présenté est Optima 75. Maison au style traditionnel à toit à 2 pans voire 4 en option. Cette maison neuve individuelle d'une surface de 75 m² se compose d'une cuisine de 11.02 m², de 3 chambres au rez-de-chaussée, d'un coin salon de 34.88 m² et d'une salle d'eau. Exposition sud, véritable avantage pour chauffer l'intérieur. La propriété vous fait profiter d'un garage. Consultez votre banque car, en fonction des travaux à réaliser, il est possible que les organismes bancaires vous accordent un financement partiel par crédit PTZ. Si vous êtes en quête d'un bien où habiter en famille, venez vite voir cette offre. prix : 212.755.€ hf Pour toutes informations, contactez l'agence MAISONS FRANCE CONFORT d'Aucamville au 05.34.43.84.38'











