

- Prix
- 422 685 €
Maison neuve • Saint-Leu-la-Forêt (95)
- Nom et prix
- Terrain à bâtir () • 422 685 €
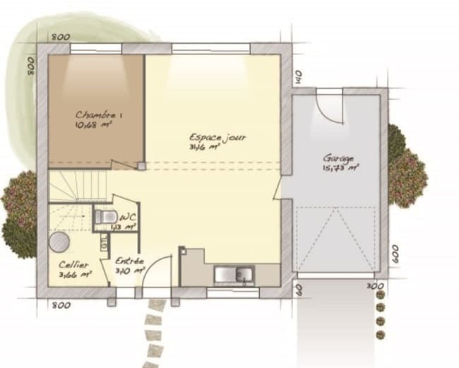
VENTE : maison de 6 pièces (98 m²) à Saint-Leu-la-Forêt PROCHE DE PARIS - MAISON 6 PIÈCES NEUVE À vendre : à côté de la gare (Paris à 25 min avec le Transilien H), ayez le coup de coeur pour à Saint-Leu-la-Forêt (95320), cette maison de 6 pièces de 98 m² et de 261 m² de terrain. Il s'agit d'une maison de 2 niveaux. Elle se divise en quatre chambres, une cuisine et une salle de bains. La maison est neuve. Des écoles primaires sont implantées à moins de 10 minutes à pied, tout comme une crèche. Niveau transports, il y a la gare Saint-Leu-la-Forêt juste à côté. On trouve un tennis, des commerces, des boulangeries, des épiceries, une supérette et un bureau de poste à proximité du logement. Enfin, le marché Place de la Mairie anime le quartier. Il est proposé à l'achat pour 422 685 €. N'hésitez pas à prendre contact avec notre agence (DUCOS Denis : 06-80-06-50-40) pour obtenir de plus amples renseignements sur la maison. Maisons Balency Moisselles est là pour vous accompagner à toutes les étapes de votre projet.