

- Prix
- 258 000 €
Maison neuve • Lignan-sur-Orb (34)
- Nom et prix
- Terrain à bâtir () • 258 000 €
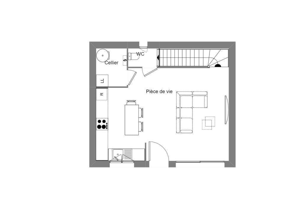
Projet de construction - Maison de 3 pièces (70 m²) à Lignan-sur-Orb MAISON 3 PIÈCES - PROCHE DE BÉZIERS En vente à 20 km de la côte méditerranéenne et à 6 km de Béziers, Maisons France Confort Béziers vous propose cette maison de 3 pièces de 70 m² à Lignan-sur-Orb (34490). Il s'agit d'une maison de 2 niveaux. Son intérieur inclut deux chambres dont une suite parentale, une cuisine, un cellier, deux salles de bains. (Carrelage inclus dans toutes les pièces / Raccordements inclus). Le terrain de la propriété s'étend sur 326 m². Il y a l'École Primaire Publique Jean Moulin à moins de 10 minutes à pied. Côté transports, on trouve la gare Béziers à moins de 10 minutes en voiture. Les autoroutes A75 et A9 sont accessibles à moins de 10 km. Il y a une bibliothèque, deux tennis, deux boulangeries, quatre commerces, un supermarché, une poissonnerie et un bureau de poste à proximité. Son prix de vente est de 258 000 €. Pour plus d'information contacter (Anthony BALLESTER : 06.27.21.51.55) Maisons France Confort Béziers pour échanger sur votre projet et réaliser une étude gratuite. (Plan personnalisable) Tous nos ouvrages sont réalisés sur-mesure en fonction de vos attentes et de nos échanges avec vous ainsi que dans le respect de la règlementation RE 2020. Ce projet comporte les garanties suivantes: Contrat de construction CCMI. Dommage/Ouvrage. RC Garantie décennale. Parfaite achèvement. Etude de sol G2. Prix et délais convenu. Garantie financière Pour votre tranquillité nous nous occupons de toutes les formalités administratives.