

- Prix
- 225 828 €
Maison neuve • Bouloc (31)
- Nom et prix
- Terrain à bâtir Bouloc (31620) • 225 828 €
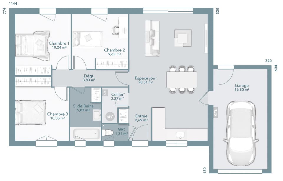
'Votre agence Maisons France Confort d'Aucamville vous propose ce projet maison + terrain sur la commune de BOULOC. Actua 73 est un modèle de maison de 73 m² à la ligne épurée et moderne en RE2020. Cette maison, où chaque espace est optimisé et parfaitement fonctionnel, dispose de nombreux atouts : 3 chambres, un espace jour de près de 30 m² et une salle de bains de plus de 5 m². Élément incontournable de ce modèle, il bénéficie de nombreux placards et d'un garage en option accolé avec accès direct à la maison. Actua s'adaptera très bien à l'architecture de votre région vous pouvez en être convaincu ! prix: 225828€ hf Pour toutes informations, contactez l'agence MAISONS FRANCE CONFORT d'Aucamville au 05.34.43.84.38.'