

- Prix
- 372 685 €
Maison neuve • Butry-sur-Oise (95)
- Nom et prix
- Terrain à bâtir () • 372 685 €
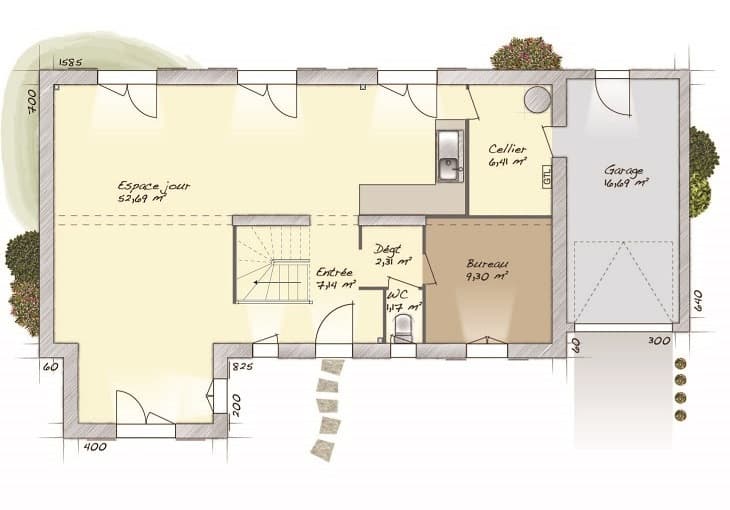
Butry-sur-Oise : maison F6 (98 m²) à vendre PROCHE DE PARIS - MAISON 6 PIÈCES NEUVE À deux pas du Transilien H (gare de Valmondois, 45 min de Paris), notre agence Maisons Balency Moisselles est ravie de vous proposer cette maison de 6 pièces de 98 m² et de 608 m² de terrain à Butry-sur-Oise (95430). Son intérieur est composé de quatre chambres, d'une cuisine et d'une salle de bains. Il s'agit d'une maison de 2 niveaux. Elle est neuve. Il y a l'École Primaire Publique Raoul Sales et l'École Secondaire Privée Pierre Gilles de Gennes à moins de 10 minutes à pied. Niveau transports, on trouve la gare Valmondois juste à côté. On trouve une bibliothèque, deux tennis, une boulangerie et deux commerces à proximité. Elle est proposée à l'achat pour 372 685 €. Contactez notre agence (DUCOS Denis : 06-80-06-50-40) pour obtenir de plus amples informations sur la maison, sur les modalités de vente ou sur les démarches à suivre. Maisons Balency Moisselles vous accompagne à toutes les étapes de votre projet et dans tous vos projets immobiliers.











